Официальное опубликование правовых актов
ОФИЦИАЛЬНОЕ ОПУБЛИКОВАНИЕ
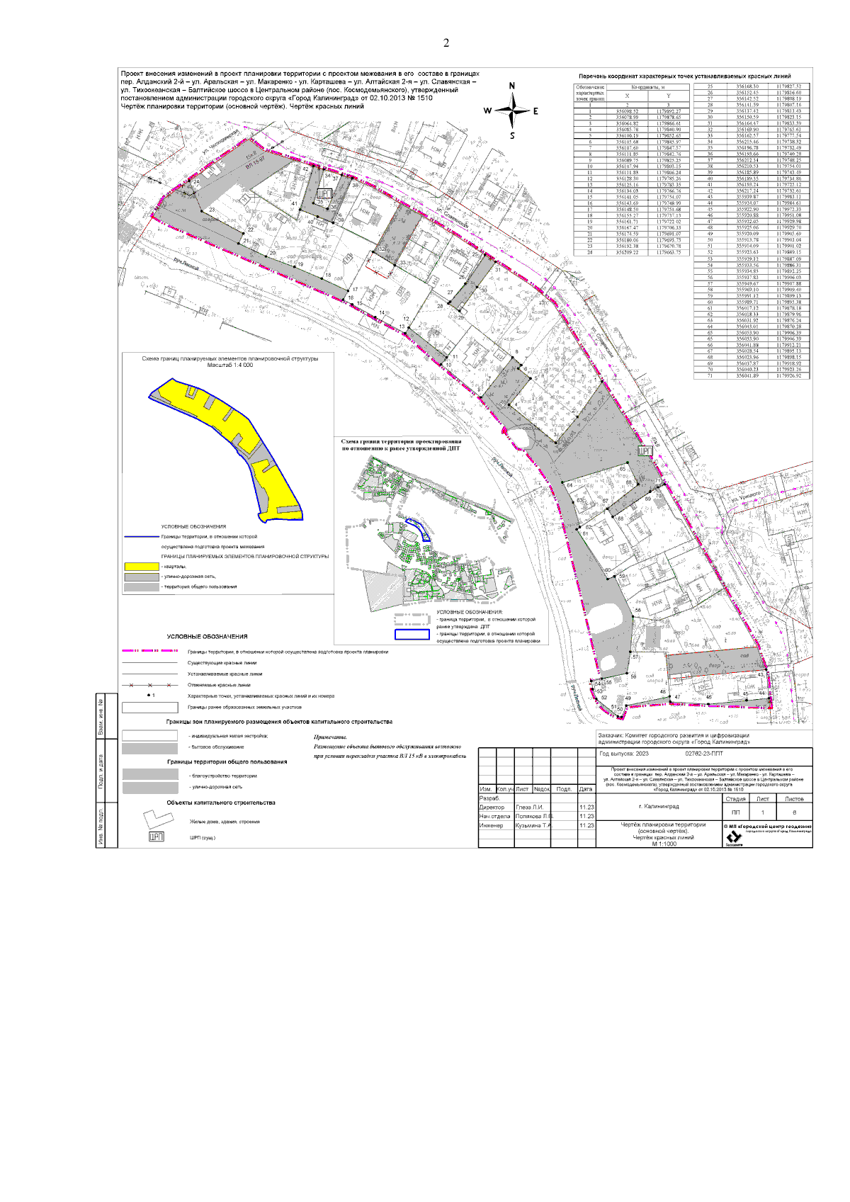
Приказ Министерства градостроительной политики Калининградской области от 14.05.2024 № 150
"Об утверждении проекта внесения изменений в документацию по планировке территории, утвержденную постановлением администрации городского округа "Город Калининград" от 02 октября 2013 года № 1510"
(Зарегистрирован 15.05.2024 № ГР/390/2024)
Номер опубликования: 3901202405170009
Дата опубликования: 17.05.2024
Страница №4 из 20: