Приказ Министерства градостроительной политики Калининградской области от 22.08.2022 № 338
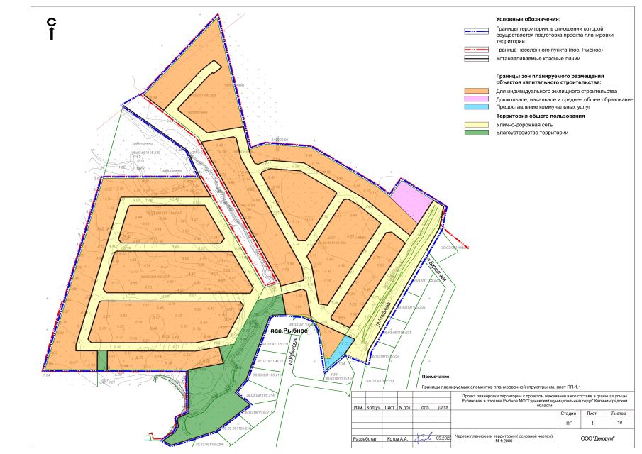
"Об утверждении проекта планировки территории с проектом межевания в его составе в границах улицы Рубиновая в поселке Рыбное муниципального образования "Гурьевский муниципальный округ" Калининградской области"
"Об утверждении проекта планировки территории с проектом межевания в его составе в границах улицы Рубиновая в поселке Рыбное муниципального образования "Гурьевский муниципальный округ" Калининградской области"
Номер опубликования: 3901202208240002
Дата опубликования:
24.08.2022
