Официальное опубликование правовых актов
ОФИЦИАЛЬНОЕ ОПУБЛИКОВАНИЕ
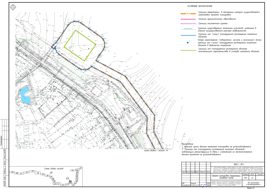
Приказ Министерства градостроительной политики Калининградской области от 14.07.2022 № 273
"Об утверждении документации по планировке территории, предусматривающей размещение линейного объекта регионального значения"
Номер опубликования: 3901202207190006
Дата опубликования: 19.07.2022
Страница №49 из 217: