Официальное опубликование правовых актов
ОФИЦИАЛЬНОЕ ОПУБЛИКОВАНИЕ
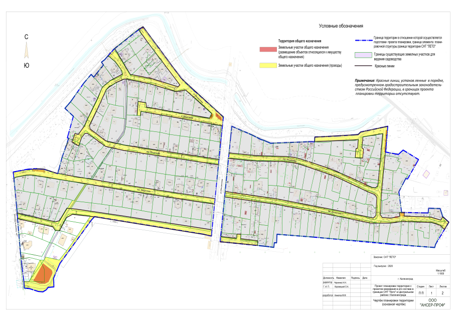
Приказ Агентства по архитектуре, градостроению и перспективному развитию Калининградской области от 29.01.2021 № 27
"Об утверждении проекта планировки территории с проектом межевания в его составе в границах СНТ "Лето" в Центральном районе г.Калининграда"
Номер опубликования: 3901202102040015
Дата опубликования: 04.02.2021
Страница №5 из 37: