Официальное опубликование правовых актов
ОФИЦИАЛЬНОЕ ОПУБЛИКОВАНИЕ
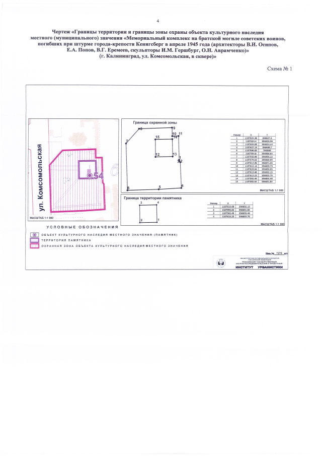
Постановление Правительства Калининградской области от 18.02.2015 № 77
"Об утверждении границ территорий и зон охраны объектов культурного наследия местного (муниципального) значения, находящихся на территории муниципального образования городского округа "Город Калининград", режимов использования земель и градостроительных регламентов в границах данных зон"
Номер опубликования: 3900201502250001
Дата опубликования: 25.02.2015
Страница №94 из 302:
Увеличить