Официальное опубликование правовых актов
ОФИЦИАЛЬНОЕ ОПУБЛИКОВАНИЕ
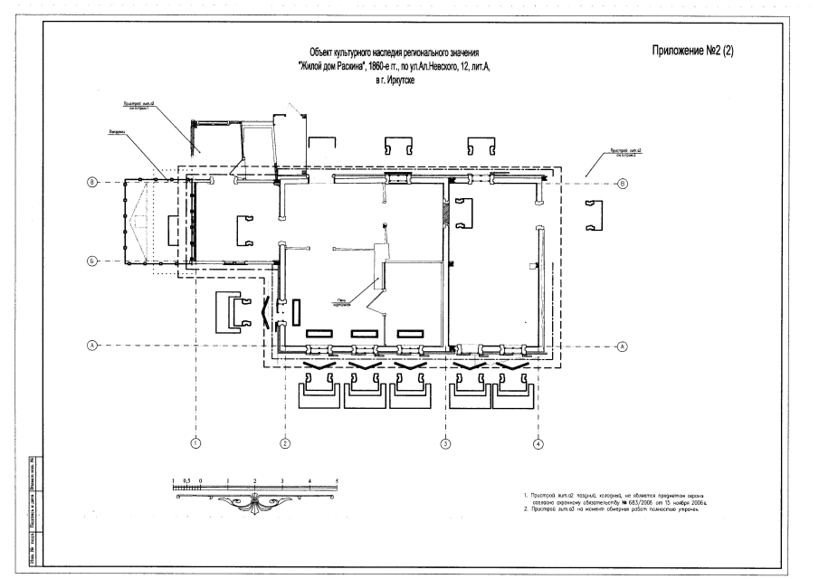
Приказ службы по охране объектов культурного наследия Иркутской области от 01.08.2018 № 212-спр
"Об утверждении предмета охраны объекта культурного наследия"
Номер опубликования: 3801201808010012
Дата опубликования: 01.08.2018
Страница №16 из 22:
Увеличить