Официальное опубликование правовых актов
ОФИЦИАЛЬНОЕ ОПУБЛИКОВАНИЕ
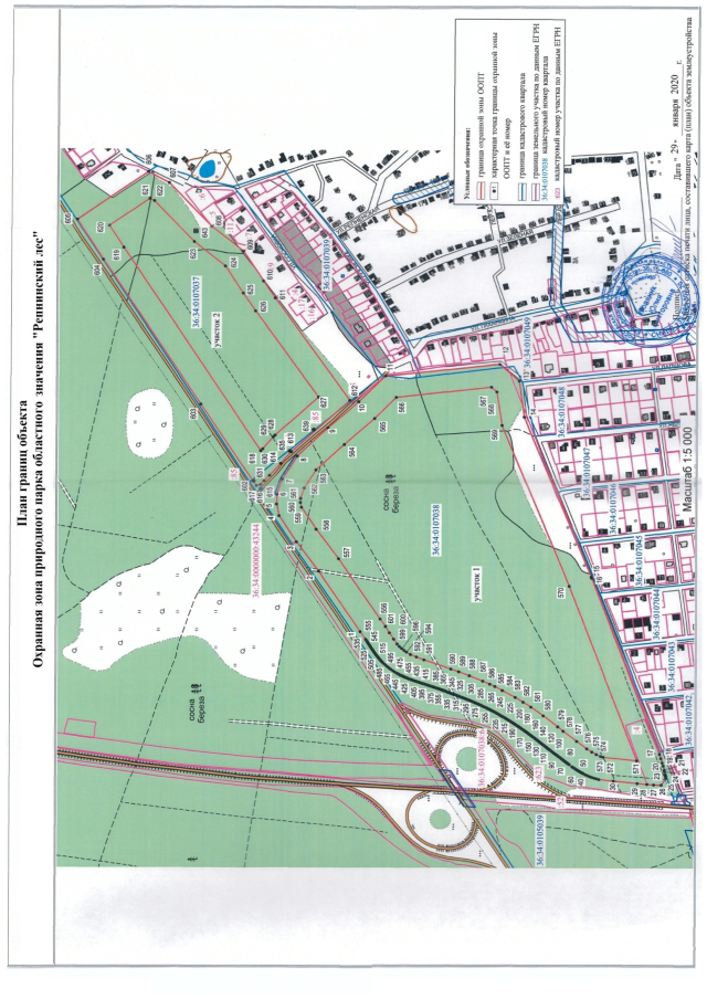
Указ губернатора Воронежской области от 17.08.2020 № 339-у
"Об установлении охранной зоны природного парка областного значения "Репнинский лес"
Номер опубликования: 3600202008190014
Дата опубликования: 19.08.2020
Страница №34 из 35:
Увеличить