Официальное опубликование правовых актов
ОФИЦИАЛЬНОЕ ОПУБЛИКОВАНИЕ
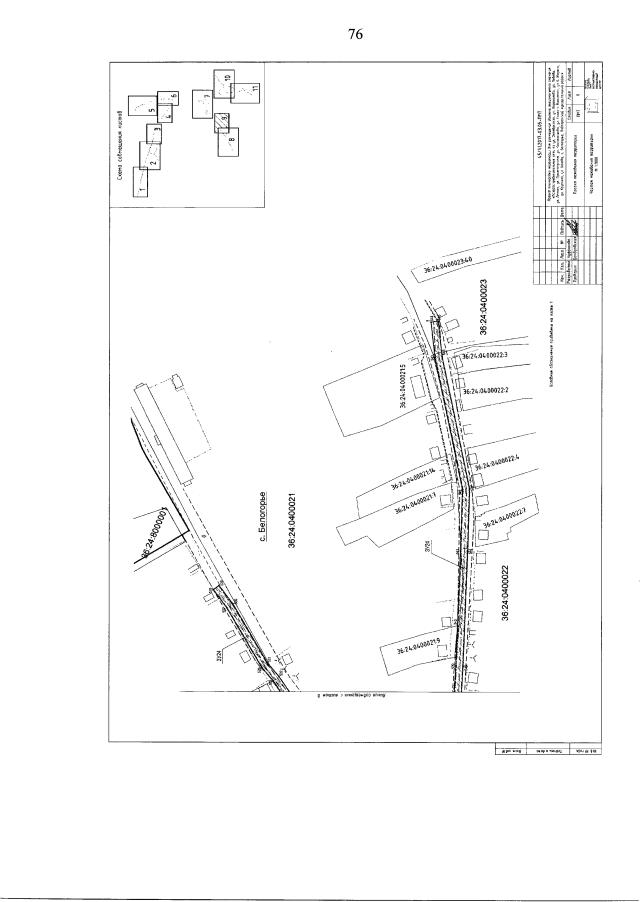
Постановление правительства Воронежской области от 09.06.2018 № 531
"Об утверждении проекта планировки территории для размещения объекта регионального значения: "Газораспределительные сети по ул. Октябрьская, ул. Ворошилова, ул. Победы, ул. Ленина, ул. Пролетарская, ул. Калашникова, ул. Сакко и Ванцетти, ул. К. Маркса, ул. Крупской, ул. Белова, с. Белогорье, Подгоренский муниципальный район"
Номер опубликования: 3600201806180018
Дата опубликования: 18.06.2018
Страница №78 из 80:
Увеличить