Официальное опубликование правовых актов
ОФИЦИАЛЬНОЕ ОПУБЛИКОВАНИЕ
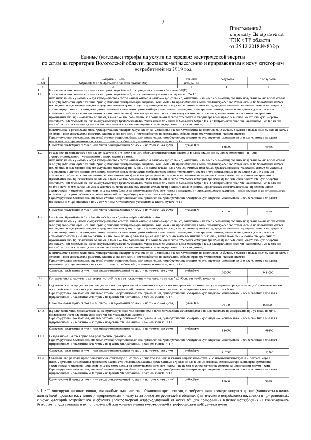
Приказ Департамента топливно-энергетического комплекса и тарифного регулирования Вологодской области от 25.12.2018 № 832-р
"Об установлении единых (котловых) тарифов на услуги по передаче электрической энергии по электрическим сетям на территории Вологодской области на 2019 год"
Номер опубликования: 3501201812260010
Дата опубликования: 26.12.2018
Страница №7 из 7:
Увеличить