Официальное опубликование правовых актов
ОФИЦИАЛЬНОЕ ОПУБЛИКОВАНИЕ
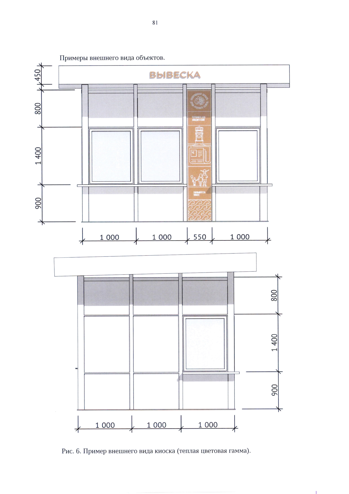
Постановление Правительства Вологодской области от 05.09.2025 № 1260
"Об утверждении единых региональных стандартов внешнего вида элементов благоустройства (дизайн-код) для городского округа город Череповец Вологодской области"
Номер опубликования: 3500202509110009
Дата опубликования: 11.09.2025
Страница №81 из 539:
Увеличить