Официальное опубликование правовых актов
ОФИЦИАЛЬНОЕ ОПУБЛИКОВАНИЕ
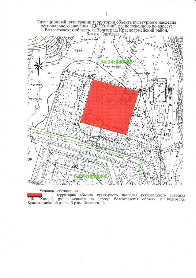
Приказ комитета государственной охраны объектов культурного наследия Волгоградской области от 23.03.2021 № 215
"Об утверждении перечня координат характерных точек границ территории объекта культурного наследия регионального значения "ДК "Химик", расположенного по адресу: Волгоградская область, г. Волгоград, Красноармейский район, б-р им. Энгельса, 1а"
Номер опубликования: 3401202103240007
Дата опубликования: 24.03.2021
Страница №3 из 3:
Увеличить