Официальное опубликование правовых актов
ОФИЦИАЛЬНОЕ ОПУБЛИКОВАНИЕ
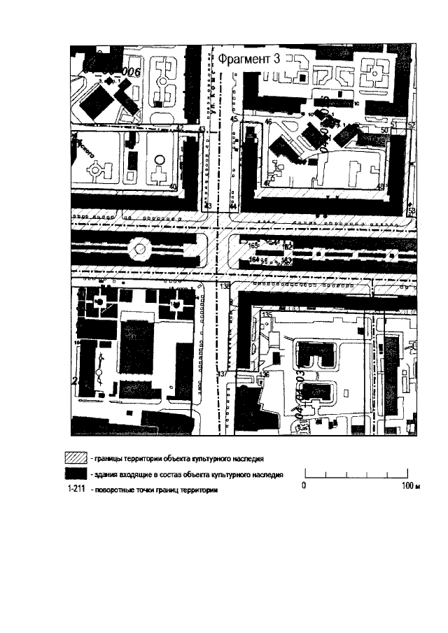
Приказ комитета государственной охраны объектов культурного наследия Волгоградской области от 14.09.2017 № 132
"Об установлении границ и режима использования территории объекта культурного наследия регионального значения "Комплекс застройки пр. Ленина", 1950-е гг., пр. Ленина, 4-59, расположенного по адресу: г. Волгоград, пр. им. В.И. Ленина, д. 4-59"
Номер опубликования: 3401201709190005
Дата опубликования: 19.09.2017
Страница №23 из 51:
Увеличить