Официальное опубликование правовых актов
ОФИЦИАЛЬНОЕ ОПУБЛИКОВАНИЕ
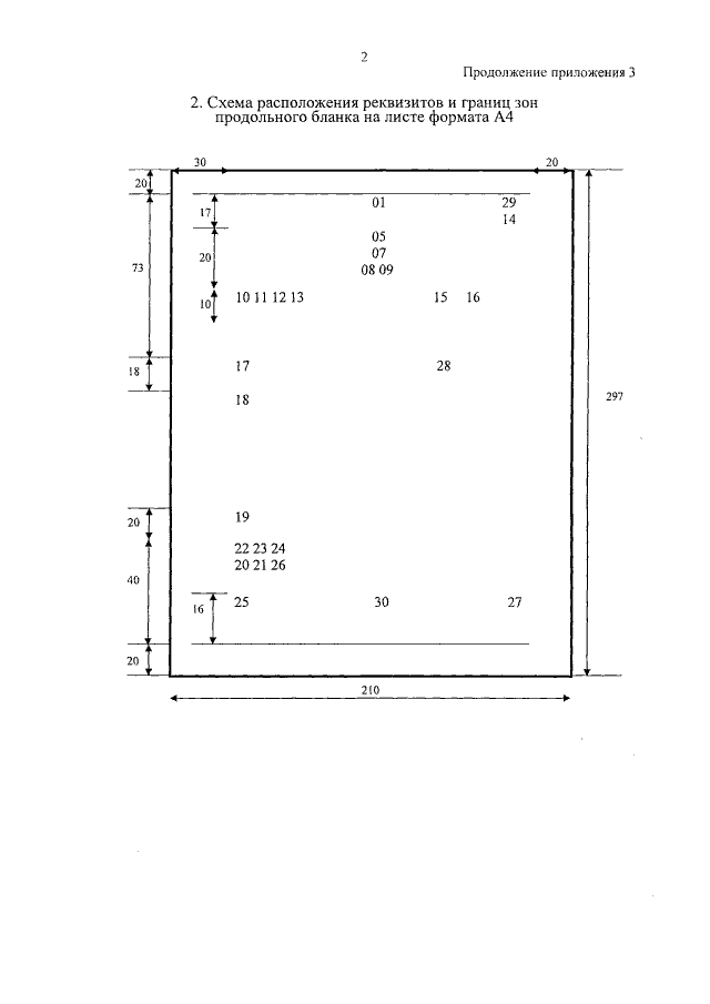
Постановление Губернатора Волгоградской области от 30.06.2021 № 476
"Об утверждении Инструкции по делопроизводству в аппарате Губернатора Волгоградской области"
Номер опубликования: 3400202107070001
Дата опубликования: 07.07.2021
Страница №106 из 132:
Увеличить