Официальное опубликование правовых актов
ОФИЦИАЛЬНОЕ ОПУБЛИКОВАНИЕ
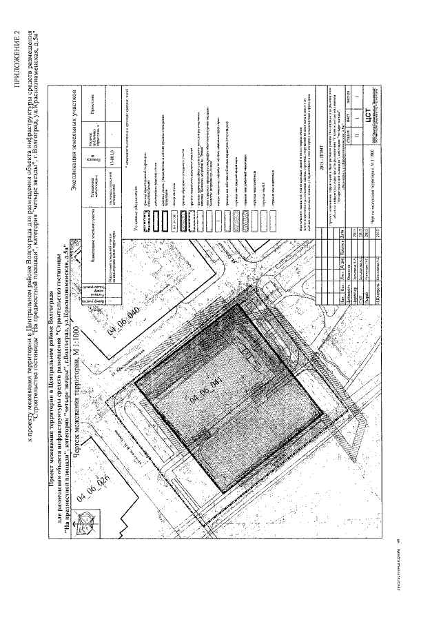
Постановление Администрации Волгоградской области от 15.02.2016 № 50-п
"Об утверждении основной части проекта планировки и проекта межевания территории в Центральном районе Волгограда для размещения объекта инфраструктуры средств размещения "Строительство гостиницы "На предмостной площади", категория "четыре звезды", г.Волгоград, ул.Краснознаменская, д.5а"
Номер опубликования: 3400201602190003
Дата опубликования: 19.02.2016
Страница №15 из 15:
Увеличить