Официальное опубликование правовых актов
ОФИЦИАЛЬНОЕ ОПУБЛИКОВАНИЕ
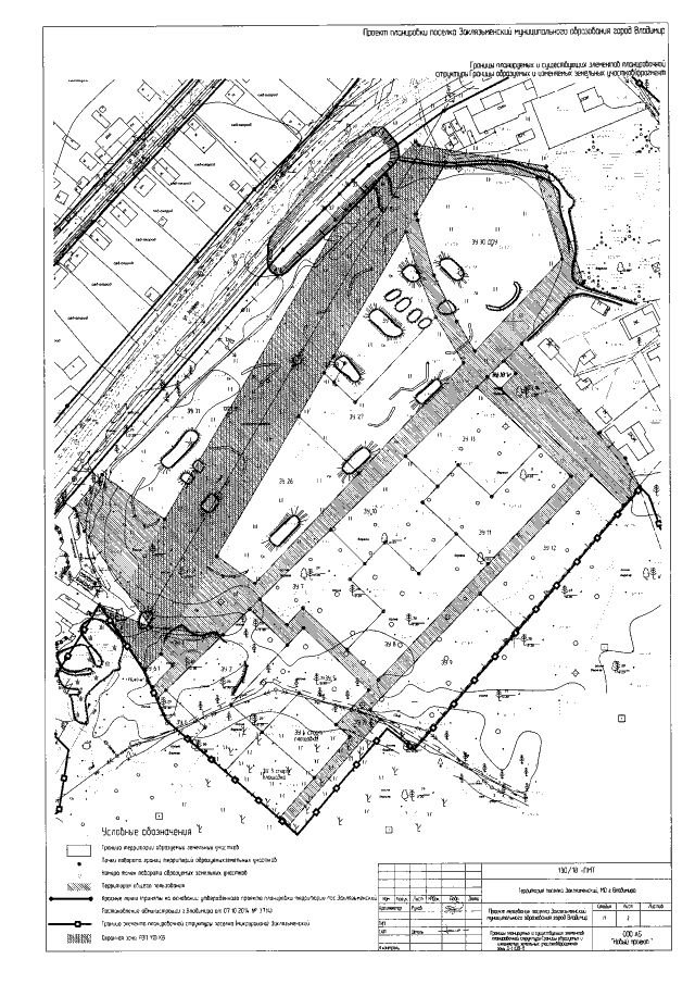
Постановление Департамента строительства и архитектуры администрации Владимирской области от 28.05.2018 № 39
"Об утверждении проекта межевания территории микрорайона Заклязьменский муниципального образования (городской округ) город Владимир"
Номер опубликования: 3301201805290001
Дата опубликования: 29.05.2018
Страница №18 из 20:
Увеличить