Официальное опубликование правовых актов
ОФИЦИАЛЬНОЕ ОПУБЛИКОВАНИЕ
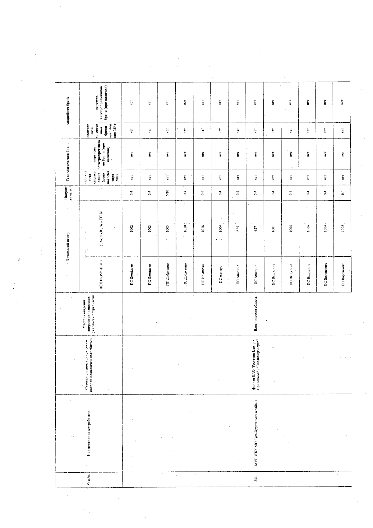
Распоряжение Губернатора Владимирской области от 22.07.2024 № 215-рг
"Об утверждении перечня потребителей, ограничение режима потребления электрической энергии которых может привести к экономическим, экологическим или социальным последствиям во Владимирской области"
Номер опубликования: 3300202407230003
Дата опубликования: 23.07.2024
Страница №86 из 114:
Увеличить