Официальное опубликование правовых актов
ОФИЦИАЛЬНОЕ ОПУБЛИКОВАНИЕ
Постановление администрации Владимирской области от 10.11.2022 № 762
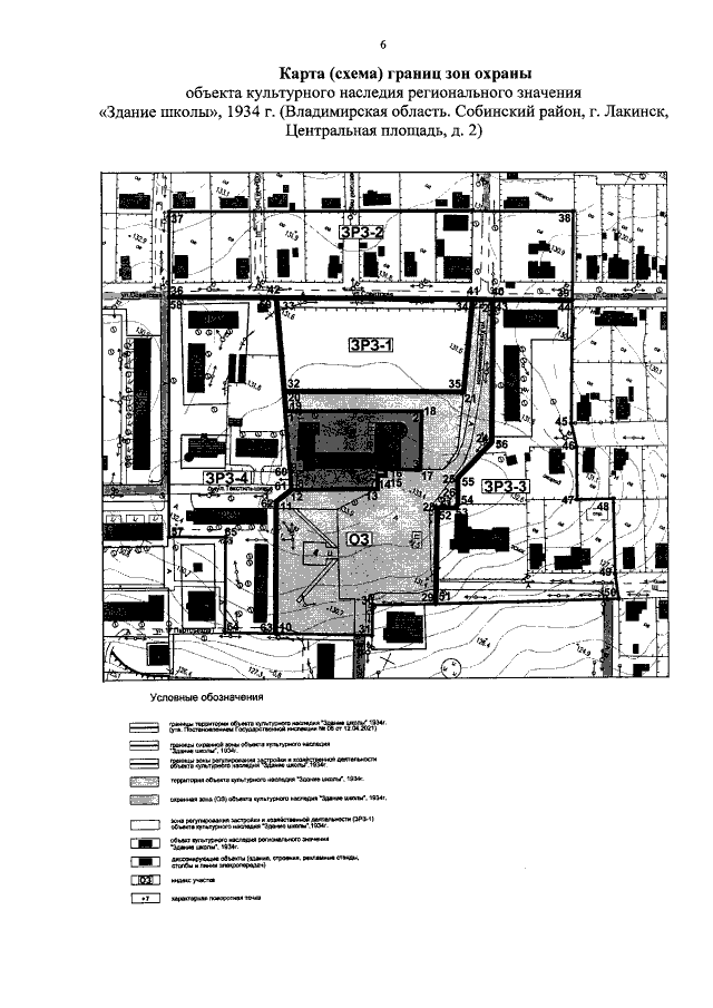
"Об установлении границ зон охраны объекта культурного наследия регионального значения "Здание школы", 1934 г. (Владимирская область, Собинский район, г. Лакинск, Центральная площадь, д. 2), об утверждении режимов использования земель и требований к градостроительным регламентам в границах территорий данных зон"
Номер опубликования: 3300202211100006
Дата опубликования: 10.11.2022
Страница №9 из 18:
Увеличить