Официальное опубликование правовых актов
ОФИЦИАЛЬНОЕ ОПУБЛИКОВАНИЕ
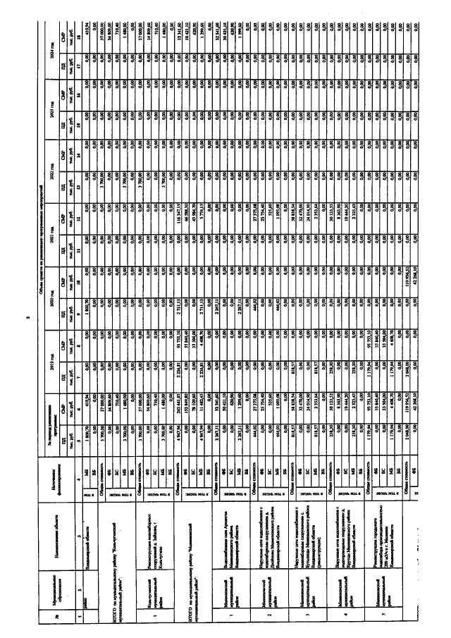
Постановление администрации Владимирской области от 24.12.2021 № 871
"О внесении изменений в постановление администрации области от 10.05.2017№ 385"
Номер опубликования: 3300202112270016
Дата опубликования: 27.12.2021
Страница №52 из 57:
Увеличить