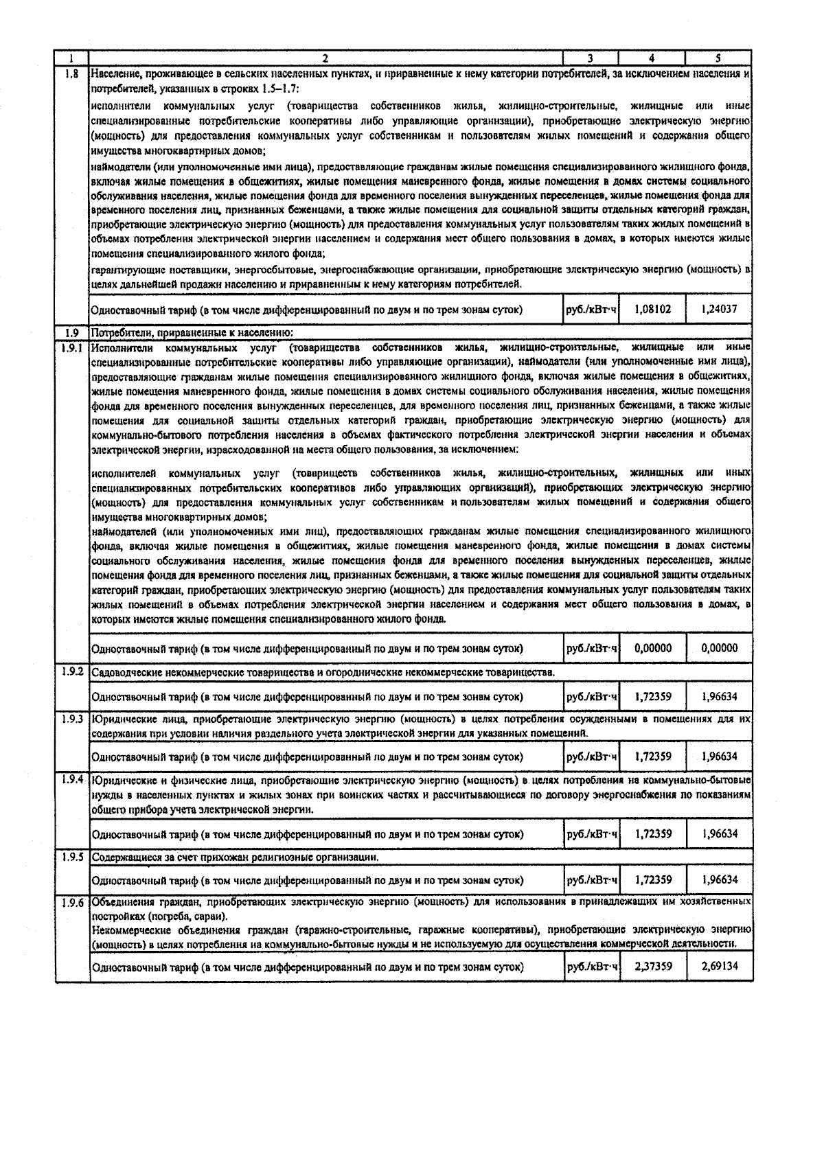
Приказ Управления государственного регулирования тарифов Брянской области от 29.11.2024 № 32/9-э
"О внесении изменений в приказ от 25 ноября 2022 года № 35/10-э "О единых (котловых) тарифах на услуги по передаче электрической энергии по сетям Брянской области"
(Зарегистрирован 03.12.2024 № 20240086024)
"О внесении изменений в приказ от 25 ноября 2022 года № 35/10-э "О единых (котловых) тарифах на услуги по передаче электрической энергии по сетям Брянской области"
(Зарегистрирован 03.12.2024 № 20240086024)
Номер опубликования: 3201202412060001
Дата опубликования:
06.12.2024
