Официальное опубликование правовых актов
ОФИЦИАЛЬНОЕ ОПУБЛИКОВАНИЕ
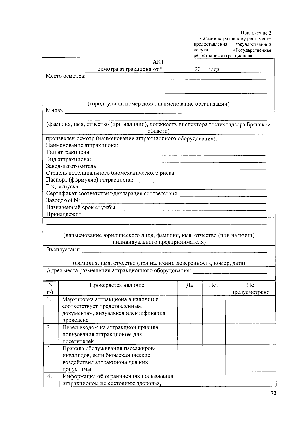
Приказ Государственной инспекции по надзору за техническим состоянием самоходных машин и других видов техники, аттракционов Брянской области от 12.02.2024 № 8
"Об утверждении административного регламента предоставления государственной услуги "Государственная регистрация аттракционов"
(Зарегистрирован 14.02.2024 № 20240002029)
Номер опубликования: 3201202402200003
Дата опубликования: 20.02.2024
Страница №74 из 78:
Увеличить