Официальное опубликование правовых актов
ОФИЦИАЛЬНОЕ ОПУБЛИКОВАНИЕ
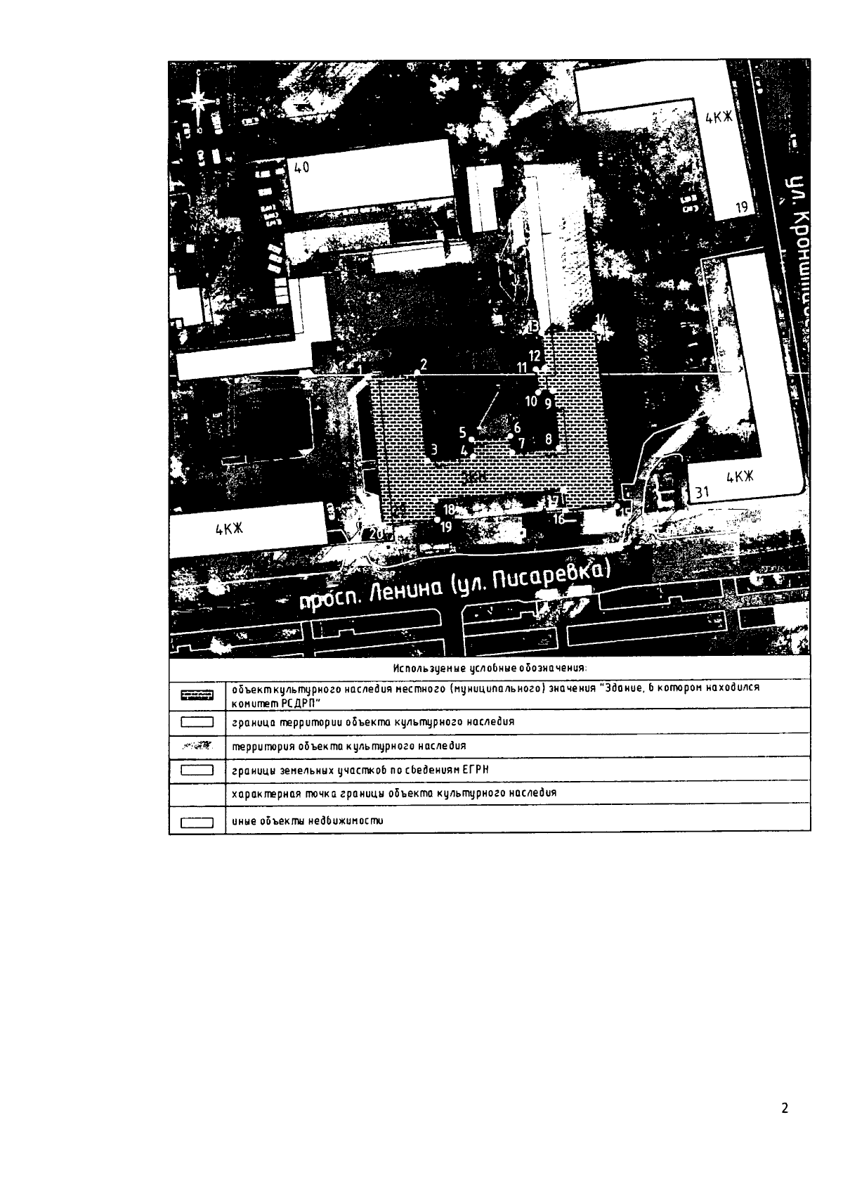
Приказ Управления по охране и сохранению историко-культурного наследия Брянской области от 30.08.2023 № 2-1/94
"Об утверждении границ территории, схемы границ территории и требований к осуществлению деятельности в границах территории объекта культурного наследия местного (муниципального) значения "Здание, в котором находился комитет РСДРП", расположенного по адресу: Брянская область, г. Клинцы, ул. Ленина, д. 29"
(Зарегистрирован 31.08.2023 № 20230030025)
Номер опубликования: 3201202309050003
Дата опубликования: 05.09.2023
Страница №3 из 6:
Увеличить