Официальное опубликование правовых актов
ОФИЦИАЛЬНОЕ ОПУБЛИКОВАНИЕ
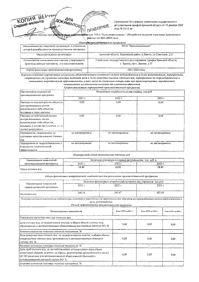
Приказ Управления государственного регулирования тарифов Брянской области от 18.12.2020 № 31/13-вк
"Об утверждении производственных программ в сфере холодного водоснабжения и водоотведения"
Номер опубликования: 3201202012230004
Дата опубликования: 23.12.2020
Страница №56 из 105:
Увеличить