Официальное опубликование правовых актов
ОФИЦИАЛЬНОЕ ОПУБЛИКОВАНИЕ
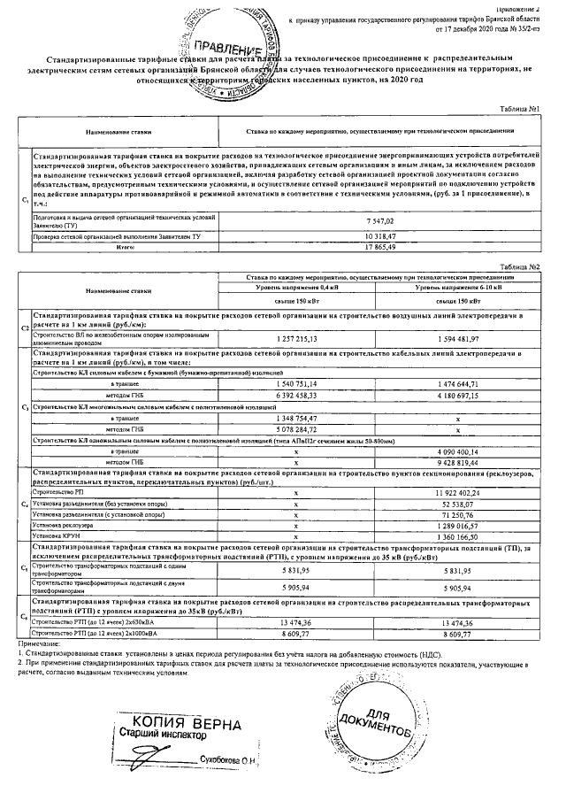
Приказ Управления государственного регулирования тарифов Брянской области от 17.12.2019 № 35/2-пэ
"Об установлении платы за технологическое присоединение к распределительным электрическим сетям сетевых организаций Брянской области на 2020 год"
Номер опубликования: 3201201912230062
Дата опубликования: 23.12.2019
Страница №5 из 9:
Увеличить