Официальное опубликование правовых актов
ОФИЦИАЛЬНОЕ ОПУБЛИКОВАНИЕ
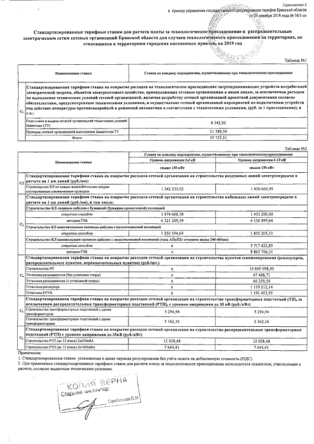
Приказ Управления государственного регулирования тарифов Брянской области от 26.12.2018 № 38/1-пэ
"Об установлении платы за технологическое присоединение к распределительным электрическим сетям сетевых организаций Брянской области на 2019 год"
Номер опубликования: 3201201812270116
Дата опубликования: 27.12.2018
Страница №5 из 9:
Увеличить