Постановление Правительства Брянской области от 10.03.2025 № 113-п
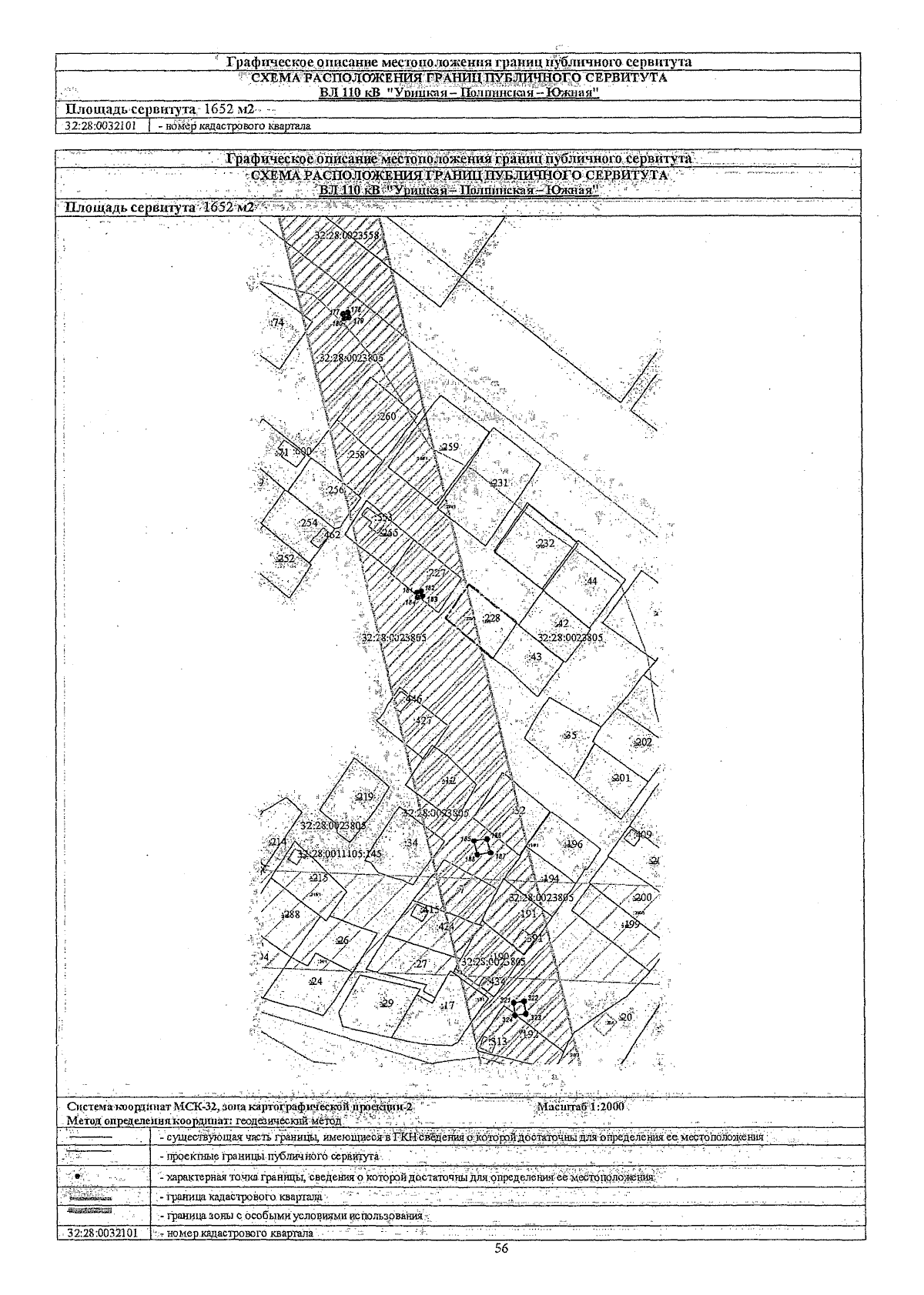
"Об установлении публичного сервитута"
"Об установлении публичного сервитута"
Номер опубликования: 3200202503140001
Дата опубликования:
14.03.2025
