Официальное опубликование правовых актов
ОФИЦИАЛЬНОЕ ОПУБЛИКОВАНИЕ
Постановление Правительства Брянской области от 23.09.2019 № 435-п
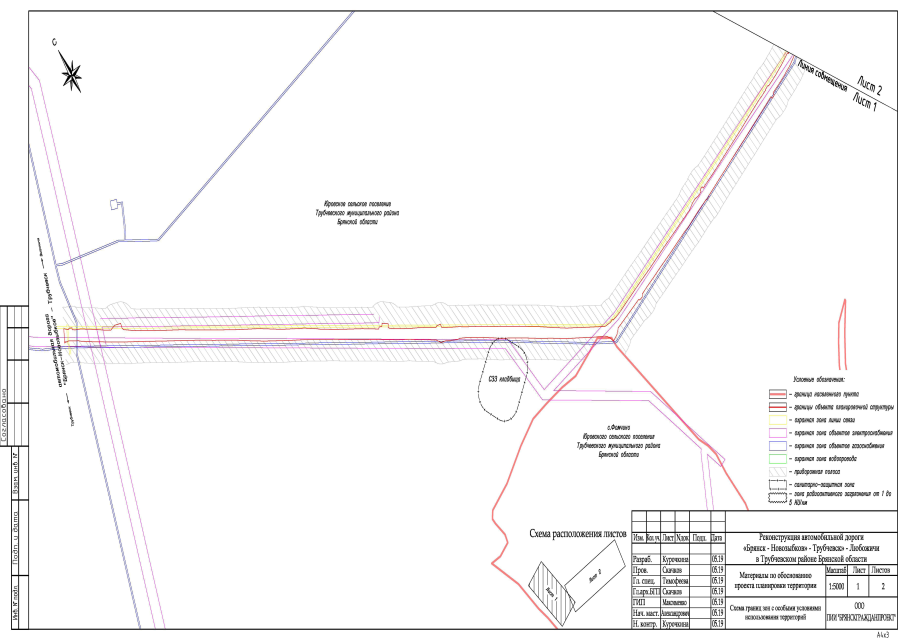
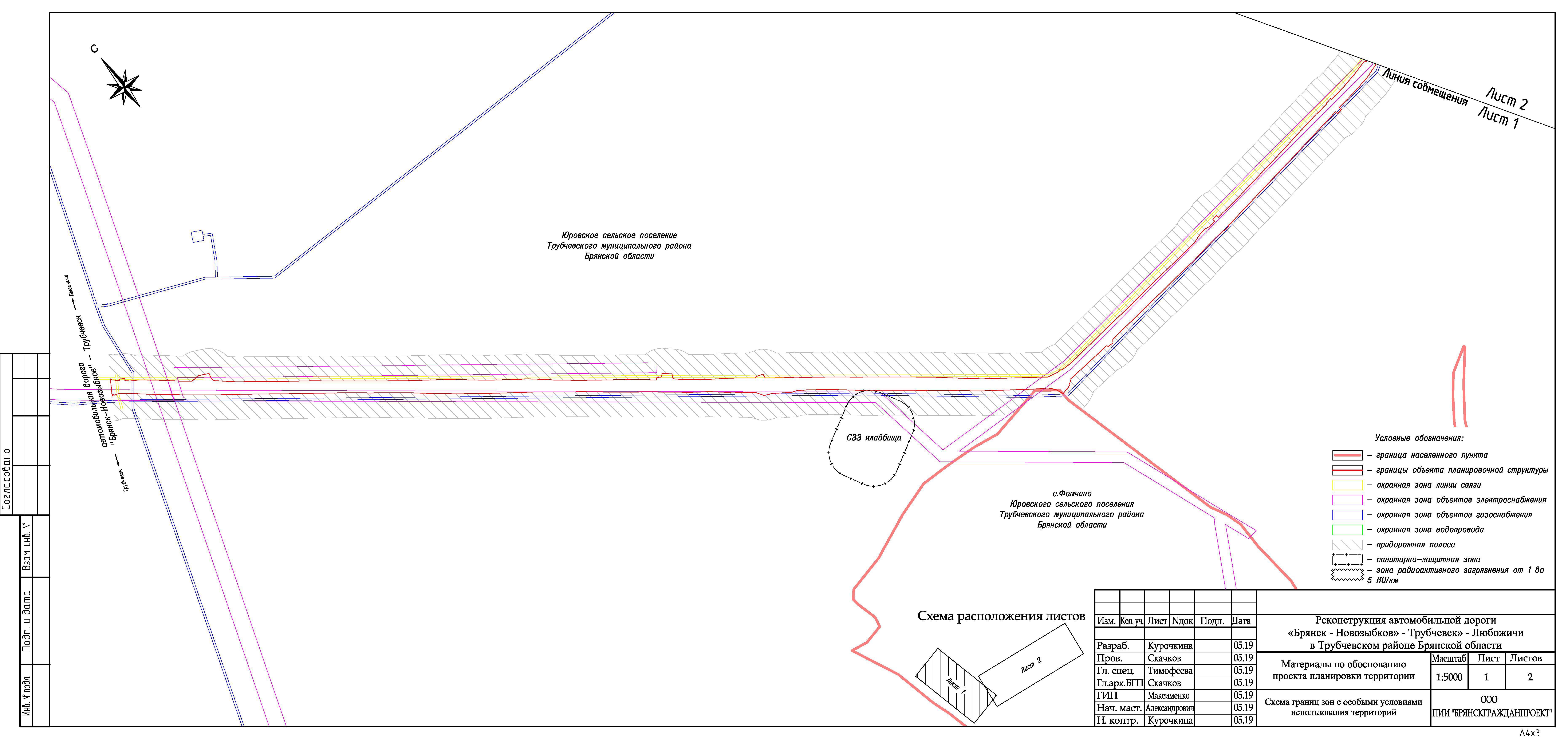
"Об утверждении проекта планировки территории, содержащего проект межевания территории, на реконструкцию автомобильной дороги "Брянск - Новозыбков" - Трубчевск" - Любожичи в Трубчевском районе Брянской области"
Номер опубликования: 3200201909300010
Дата опубликования: 30.09.2019
Страница №33 из 125: