Постановление Правительства Белгородской области от 31.03.2025 № 166-пп
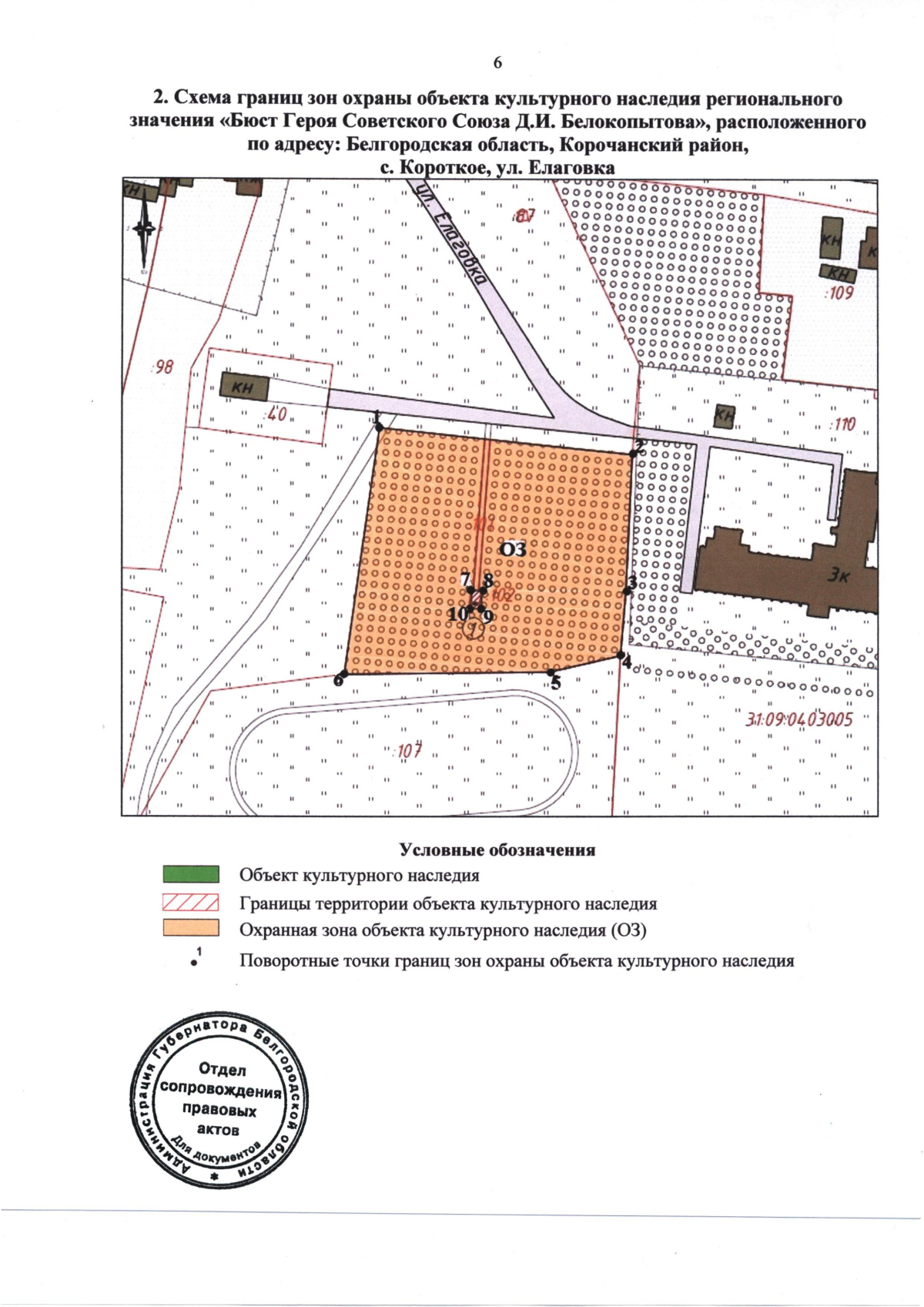
"Об утверждении границ зон охраны, режимов использования земель и требований к градостроительным регламентам в границах зон охраны объекта культурного наследия регионального значения "Бюст Героя Советского Союза Д.И. Белокопытова", расположенного по адресу: Белгородская область, Корочанский район, с. Короткое, ул. Елаговка"
"Об утверждении границ зон охраны, режимов использования земель и требований к градостроительным регламентам в границах зон охраны объекта культурного наследия регионального значения "Бюст Героя Советского Союза Д.И. Белокопытова", расположенного по адресу: Белгородская область, Корочанский район, с. Короткое, ул. Елаговка"
Номер опубликования: 3100202504030007
Дата опубликования:
03.04.2025
