Официальное опубликование правовых актов
ОФИЦИАЛЬНОЕ ОПУБЛИКОВАНИЕ
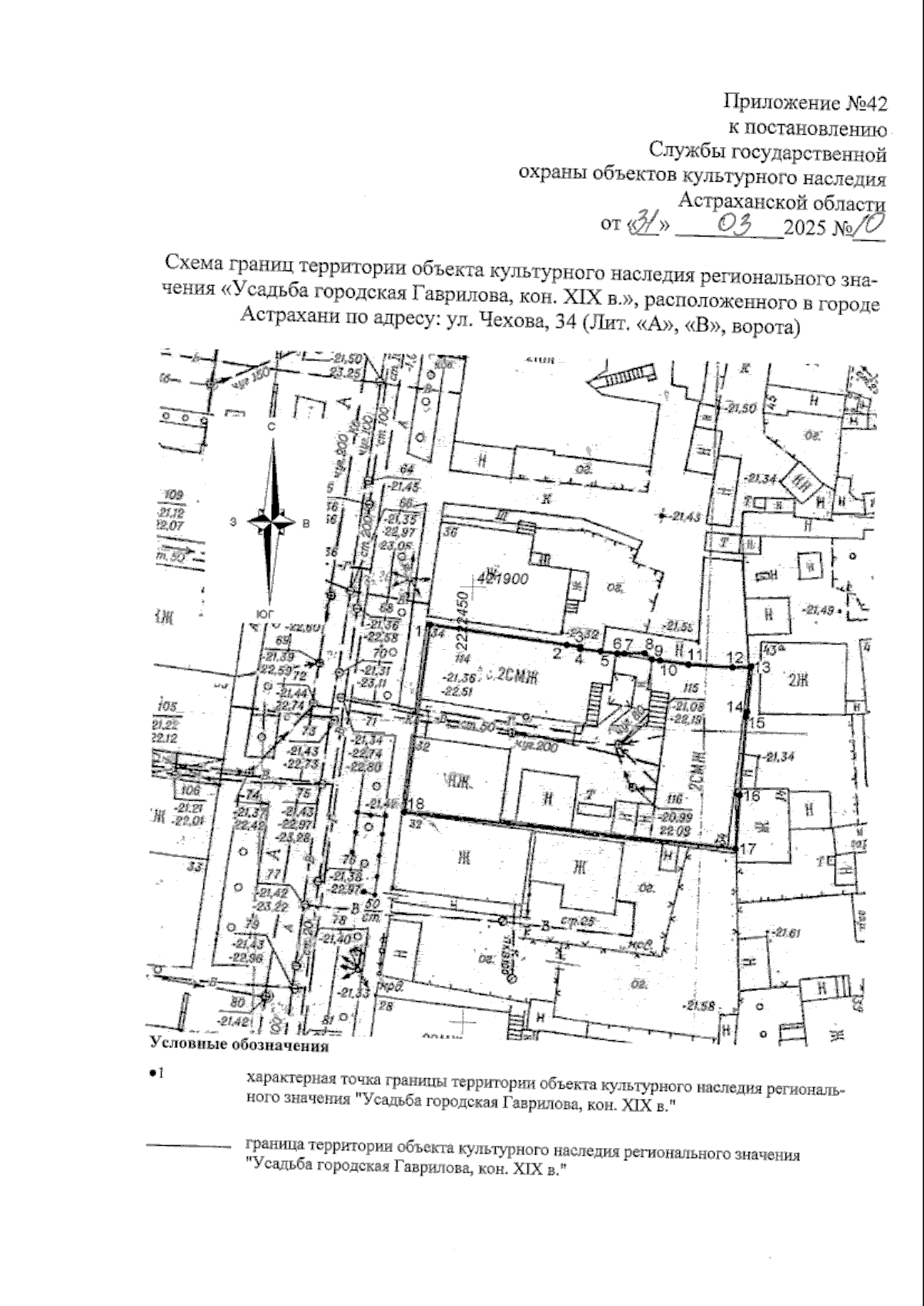
Постановление Службы государственной охраны объектов культурного наследия Астраханской области от 31.03.2025 № 10
"Об установлении границ территорий объектов культурного наследия, расположенных в городе Астрахани"
(Зарегистрирован 31.03.2025 № 302/25/10)
Номер опубликования: 3001202504030004
Дата опубликования: 03.04.2025
Страница №64 из 74:
Увеличить