Распоряжение Правительства Астраханской области от 28.02.2025 № 81-Пр
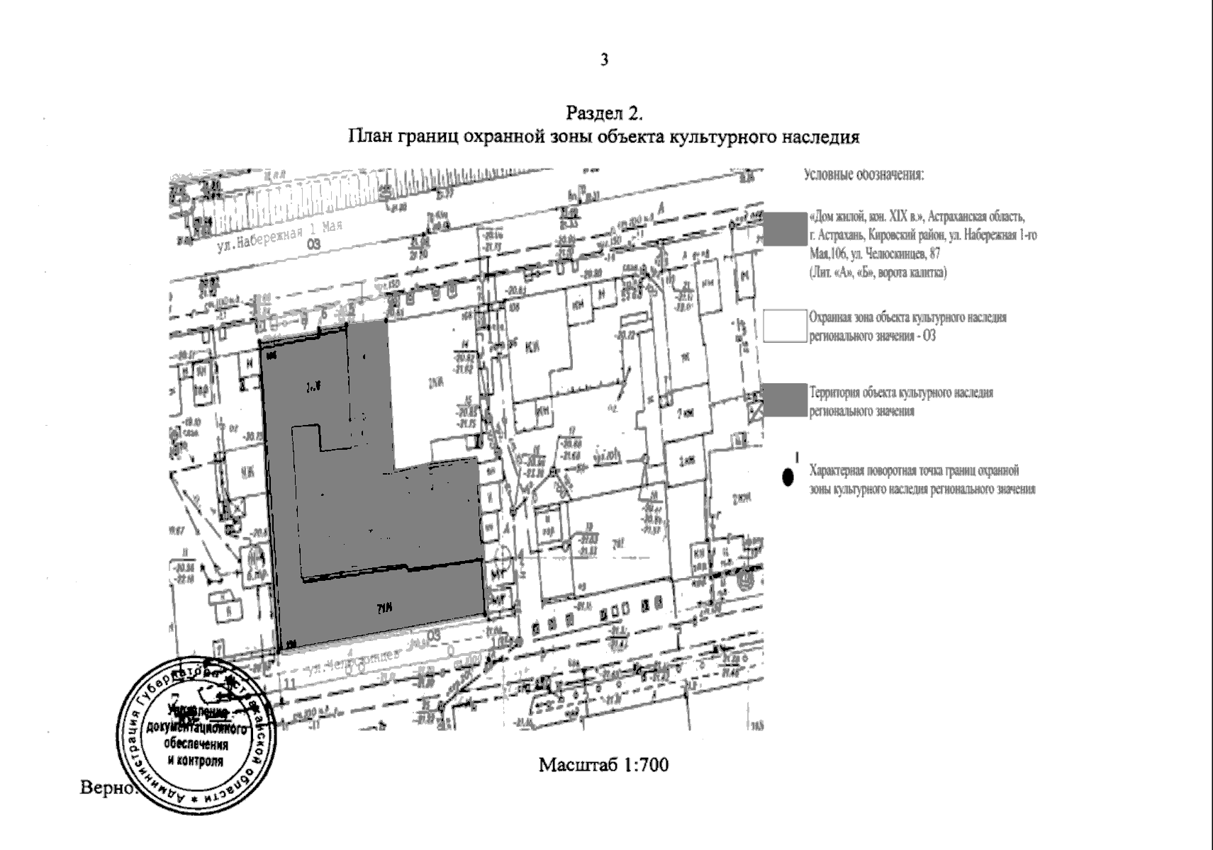
"Об установлении зоны охраны объекта культурного наследия регионального значения "Дом жилой, кон. XIX в.", расположенного по адресу: Астраханская область, г. Астрахань, ул. Набережная 1 Мая, 106, ул. Челюскинцев, 87 (Лит. "А", "Б", ворота, калитка), и утверждении требований к градостроительным регламентам в границах данной зоны"
"Об установлении зоны охраны объекта культурного наследия регионального значения "Дом жилой, кон. XIX в.", расположенного по адресу: Астраханская область, г. Астрахань, ул. Набережная 1 Мая, 106, ул. Челюскинцев, 87 (Лит. "А", "Б", ворота, калитка), и утверждении требований к градостроительным регламентам в границах данной зоны"
Номер опубликования: 3000202503070008
Дата опубликования:
07.03.2025
