Распоряжение Правительства Астраханской области от 28.02.2025 № 69-Пр
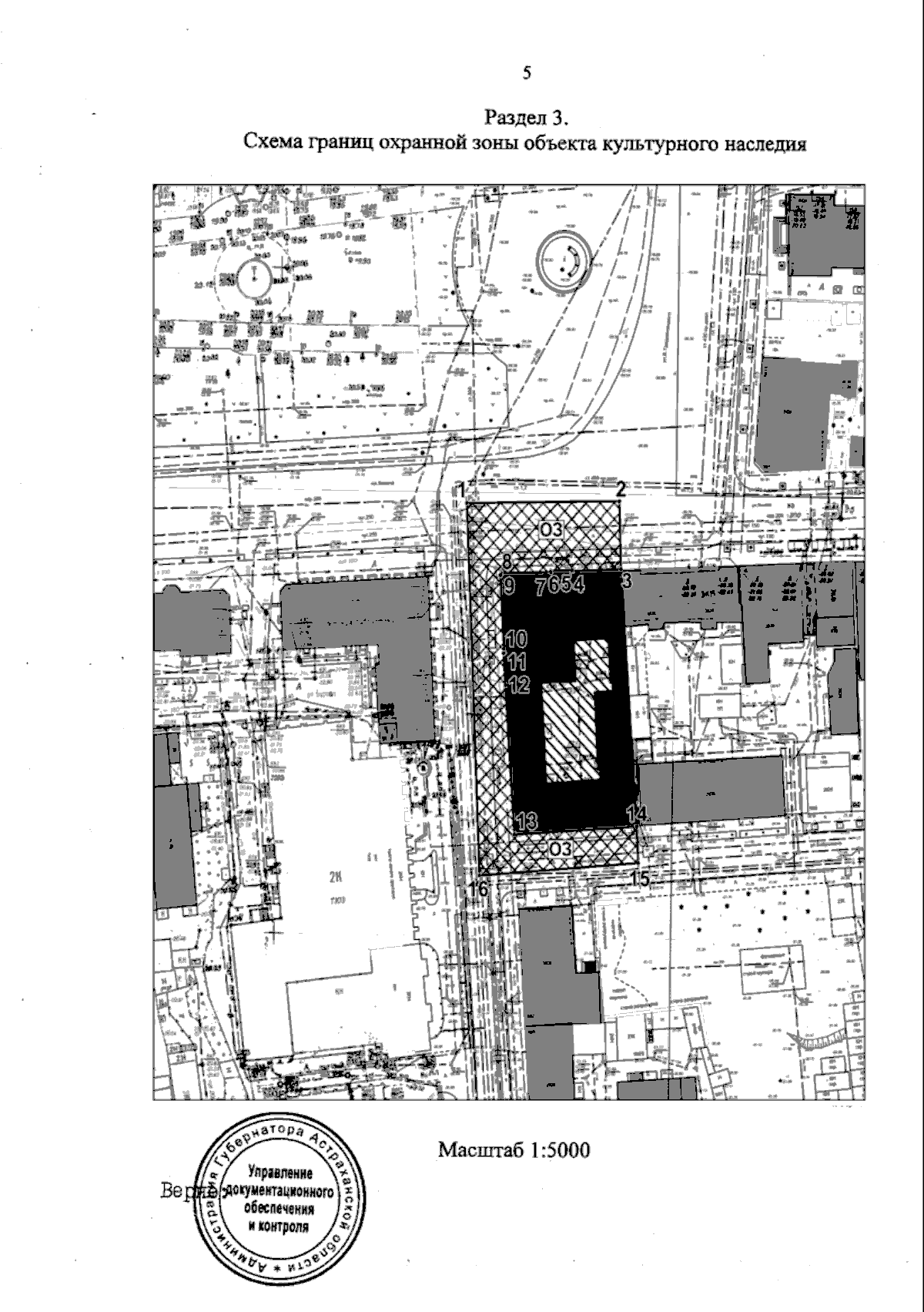
"Об установлении зоны охраны объекта культурного наследия регионального значения "Дом Хлебникова Х.Н., до 1884 г., 1914 г.", расположенного по адресу: Астраханская область, г. Астрахань, ул. Ленина, 2, ул. М. Джалиля, 1, ул. Бабушкина, 1 (Лит. "А, а, Б, Г")"
"Об установлении зоны охраны объекта культурного наследия регионального значения "Дом Хлебникова Х.Н., до 1884 г., 1914 г.", расположенного по адресу: Астраханская область, г. Астрахань, ул. Ленина, 2, ул. М. Джалиля, 1, ул. Бабушкина, 1 (Лит. "А, а, Б, Г")"
Номер опубликования: 3000202503070002
Дата опубликования:
07.03.2025
