Распоряжение Правительства Астраханской области от 28.02.2025 № 62-Пр
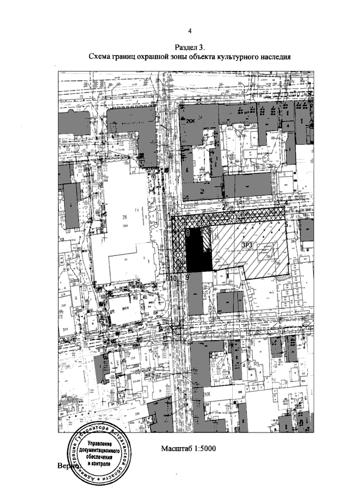
"Об установлении зоны охраны объекта культурного наследия регионального значения "Дом жилой Комаровой (Чернова), 2-я пол. XIX в.", расположенного по адресу: Астраханская область, г. Астрахань, ул. Бабушкина, 2, ул. Шаумяна, 31, ул. М. Джалиля, 3 (Лит. "Б"), и утверждении требований к градостроительным регламентам в границах данной зоны"
"Об установлении зоны охраны объекта культурного наследия регионального значения "Дом жилой Комаровой (Чернова), 2-я пол. XIX в.", расположенного по адресу: Астраханская область, г. Астрахань, ул. Бабушкина, 2, ул. Шаумяна, 31, ул. М. Джалиля, 3 (Лит. "Б"), и утверждении требований к градостроительным регламентам в границах данной зоны"
Номер опубликования: 3000202503040010
Дата опубликования:
04.03.2025
