Официальное опубликование правовых актов
ОФИЦИАЛЬНОЕ ОПУБЛИКОВАНИЕ
Распоряжение Правительства Астраханской области от 28.02.2025 № 59-Пр
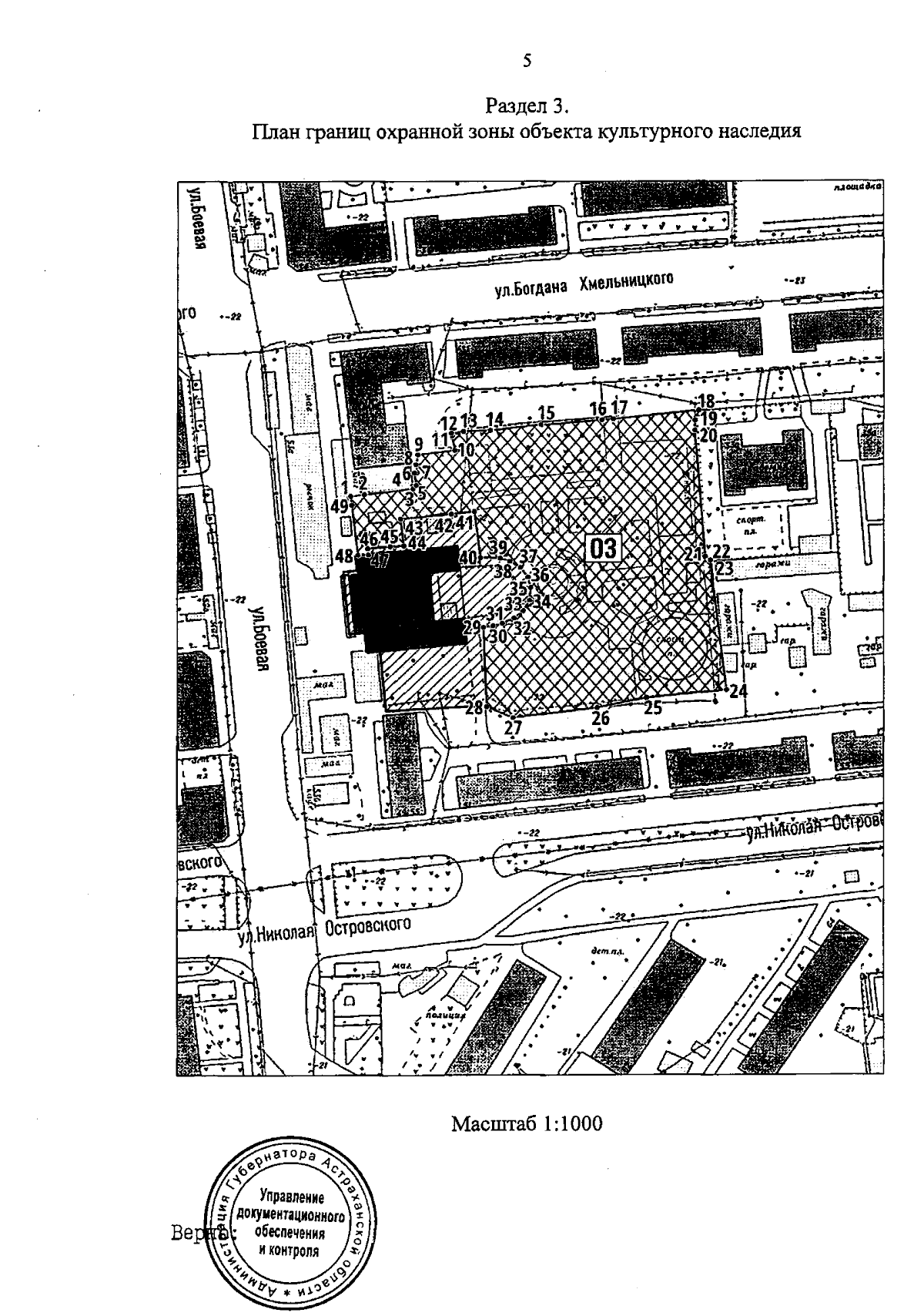
"Об установлении зоны охраны объекта культурного наследия регионального значения "Клуб Астраханского тепловозоремонтного завода (АТРЗ), 1950-е гг.", расположенного по адресу: Астраханская область, г. Астрахань, ул. Боевая, 53, и утверждении требований к градостроительным регламентам в границах данной зоны"
Номер опубликования: 3000202503040005
Дата опубликования: 04.03.2025
Страница №7 из 17:
Увеличить