Распоряжение Правительства Астраханской области от 28.02.2025 № 56-Пр
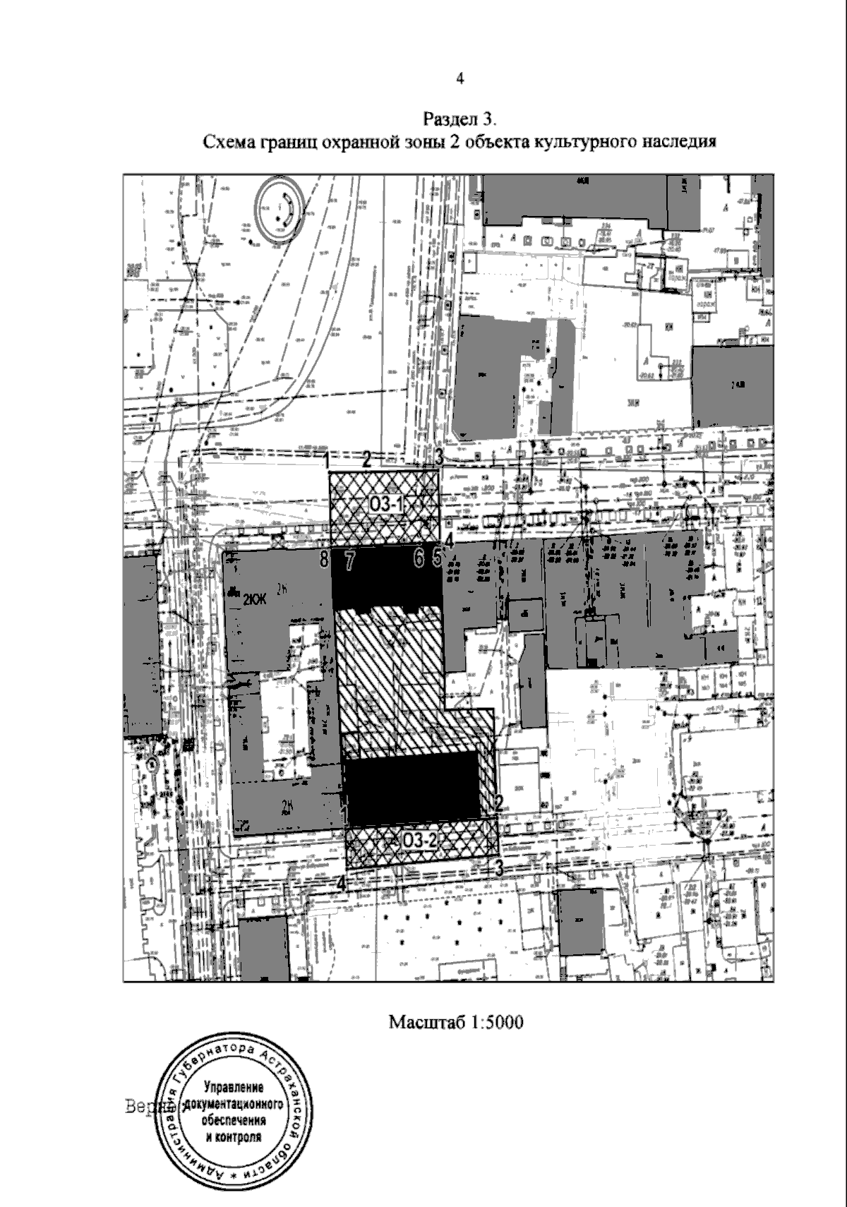
"Об установлении зоны охраны объекта культурного наследия регионального значения "Дом жилой многоквартирный, 1930-е гг.", расположенного по адресу: Астраханская область, г. Астрахань, ул. Бабушкина, 3, ул. Ленина, 4 (Лит. "А", "Б"), и утверждении требований к градостроительным регламентам в границах данной зоны"
"Об установлении зоны охраны объекта культурного наследия регионального значения "Дом жилой многоквартирный, 1930-е гг.", расположенного по адресу: Астраханская область, г. Астрахань, ул. Бабушкина, 3, ул. Ленина, 4 (Лит. "А", "Б"), и утверждении требований к градостроительным регламентам в границах данной зоны"
Номер опубликования: 3000202503040001
Дата опубликования:
04.03.2025
