Постановление Правительства Амурской области от 17.07.2025 № 562
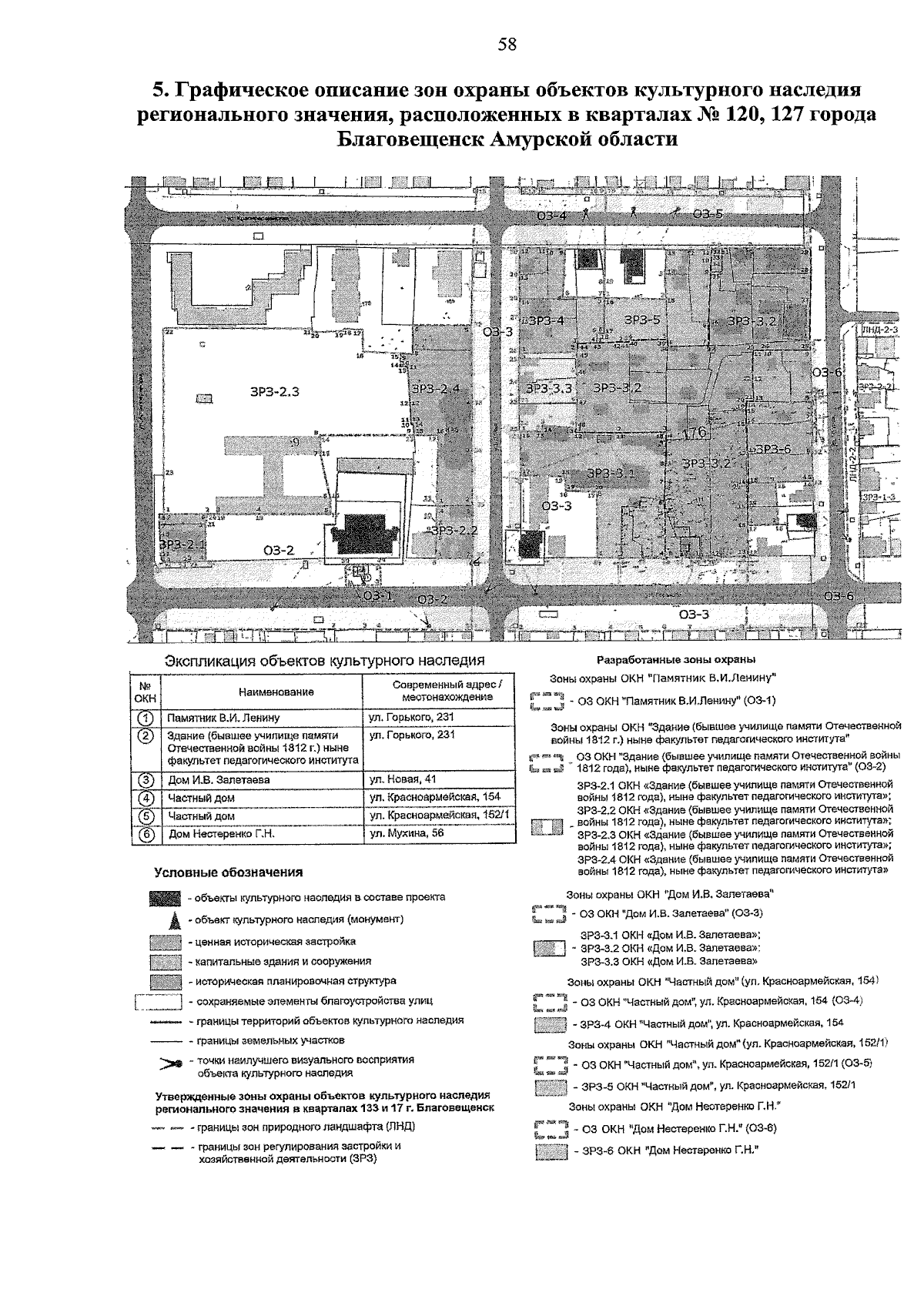
"Об установлении зон охраны объектов культурного наследия регионального значения, расположенных в кварталах № 120, 127 города Благовещенск Амурской области, и утверждении требований к градостроительным регламентам в границах территорий данных зон"
"Об установлении зон охраны объектов культурного наследия регионального значения, расположенных в кварталах № 120, 127 города Благовещенск Амурской области, и утверждении требований к градостроительным регламентам в границах территорий данных зон"
Номер опубликования: 2800202507230001
Дата опубликования:
23.07.2025
