Постановление Правительства Амурской области от 25.04.2025 № 323
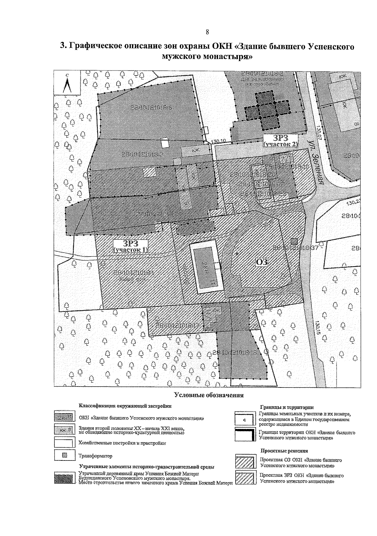
"Об установлении зон охраны объекта культурного наследия регионального значения "Здание бывшего Успенского мужского монастыря" нач. XX в. (Амурская область, Благовещенский муниципальный округ, с. Усть-Ивановка, ул. Зеленая, д. 11) и утверждении требований к градостроительным регламентам в границах территорий данных зон"
"Об установлении зон охраны объекта культурного наследия регионального значения "Здание бывшего Успенского мужского монастыря" нач. XX в. (Амурская область, Благовещенский муниципальный округ, с. Усть-Ивановка, ул. Зеленая, д. 11) и утверждении требований к градостроительным регламентам в границах территорий данных зон"
Номер опубликования: 2800202504280007
Дата опубликования:
28.04.2025
