Официальное опубликование правовых актов
ОФИЦИАЛЬНОЕ ОПУБЛИКОВАНИЕ
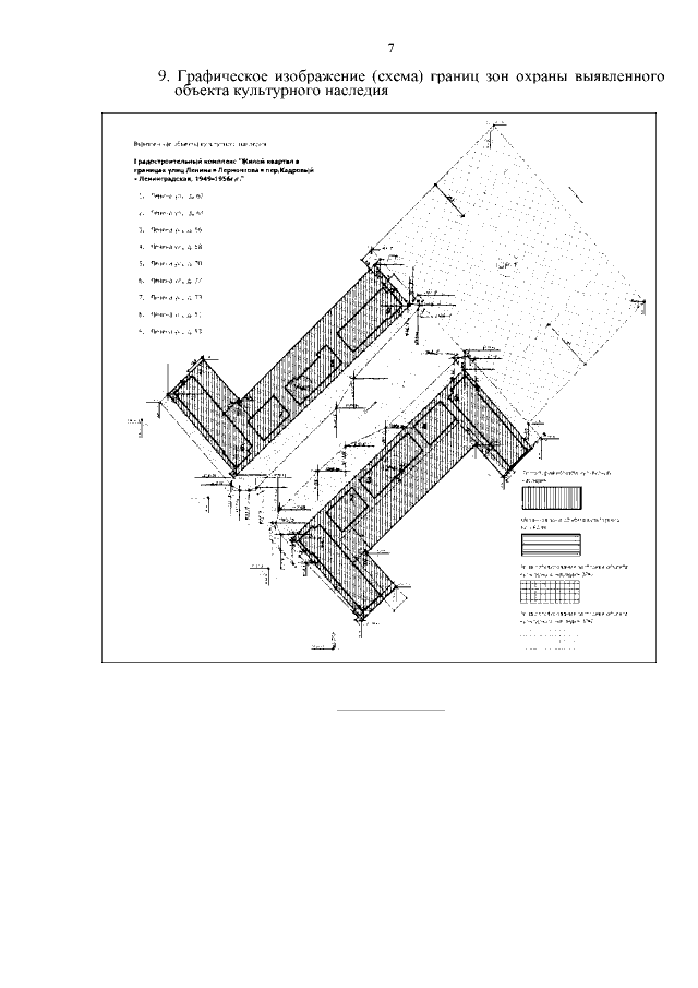
Постановление Правительства Хабаровского края от 22.10.2014 № 392-пр "Об утверждении границ зон охраны, режимов использования земель и градостроительных регламентов в границах данных зон выявленного объекта культурного наследия "Градостроительный комплекс "Жилой квартал в границах улиц Ленина – Лермонтова – пер. Кадровый – Ленинградская" в г. Хабаровске"
Номер опубликования: 2700201410220001
Дата опубликования: 22.10.2014
Страница №8 из 8:
Увеличить