Официальное опубликование правовых актов
ОФИЦИАЛЬНОЕ ОПУБЛИКОВАНИЕ
Постановление Правительства Приморского края от 25.08.2023 № 599-пп
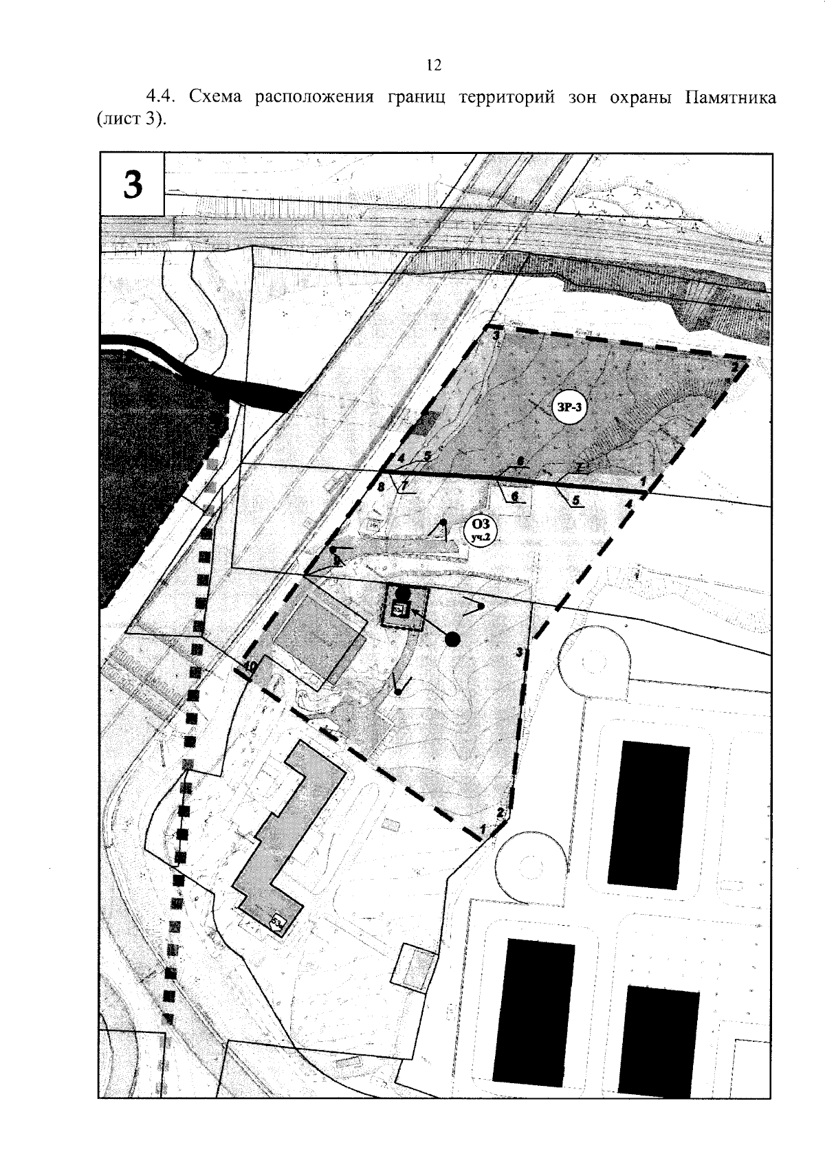
"О внесении изменений в постановление Правительства Приморского края от 22 января 2021 года № 22-пп "Об установлении зон охраны объекта культурного наследия (памятника истории и культуры) народов Российской Федерации регионального значения "Архитектурный комплекс бывшего архиепископского подворья", 1894-1898 гг., утверждении требований к градостроительным регламентам в границах территорий данных зон"
Номер опубликования: 2501202308290049
Дата опубликования: 29.08.2023
Страница №14 из 30:
Увеличить