Приказ Инспекции по охране объектов культурного наследия Приморского края от 08.08.2023 № 302
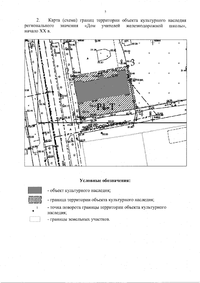
"Об утверждении границ территории объекта культурного наследия (памятника истории и культуры) народов Российской Федерации регионального значения "Дом учителей железнодорожной школы", начало XX в., регистрационный номер 251410119980005, расположенного по адресу (местонахождение): Приморский край, г. Уссурийск, проспект Блюхера, д. 14"
(Зарегистрирован 09.08.2023 № 410)
"Об утверждении границ территории объекта культурного наследия (памятника истории и культуры) народов Российской Федерации регионального значения "Дом учителей железнодорожной школы", начало XX в., регистрационный номер 251410119980005, расположенного по адресу (местонахождение): Приморский край, г. Уссурийск, проспект Блюхера, д. 14"
(Зарегистрирован 09.08.2023 № 410)
Номер опубликования: 2501202308110005
Дата опубликования:
11.08.2023
