Приказ Инспекции по охране объектов культурного наследия Приморского края от 08.08.2023 № 300
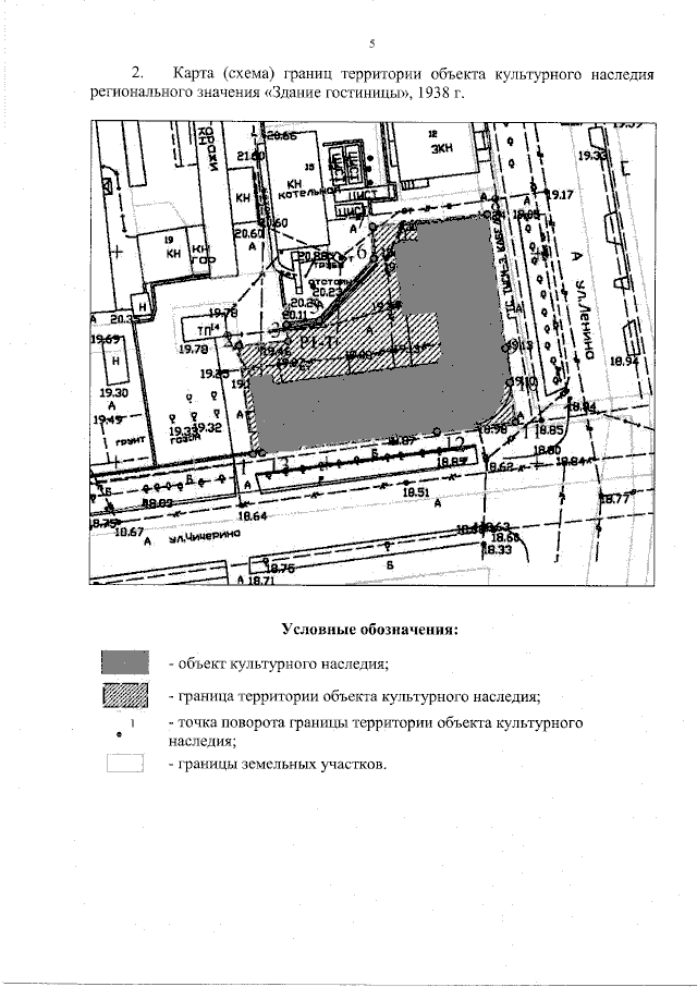
"Об утверждении границ территории объекта культурного наследия (памятника истории и культуры) народов Российской Федерации регионального значения "Здание гостиницы", 1938 г., регистрационный номер 251711294890005, расположенного по адресу (местонахождение): Приморский край, г. Уссурийск, ул. Чичерина, д. 93"
(Зарегистрирован 09.08.2023 № 416)
"Об утверждении границ территории объекта культурного наследия (памятника истории и культуры) народов Российской Федерации регионального значения "Здание гостиницы", 1938 г., регистрационный номер 251711294890005, расположенного по адресу (местонахождение): Приморский край, г. Уссурийск, ул. Чичерина, д. 93"
(Зарегистрирован 09.08.2023 № 416)
Номер опубликования: 2501202308110004
Дата опубликования:
11.08.2023
