Официальное опубликование правовых актов
ОФИЦИАЛЬНОЕ ОПУБЛИКОВАНИЕ
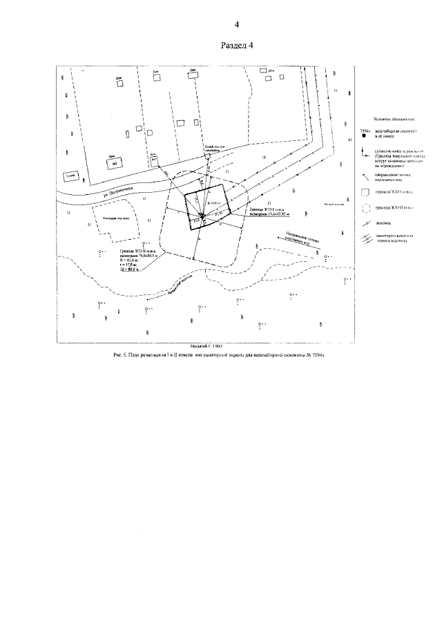
Постановление Правительства Приморского края от 27.07.2023 № 515-пп
"Об установлении зон санитарной охраны для водозаборной скважины № 7594а, расположенной в с. Корфовка Уссурийского городского округа Приморского края"
Номер опубликования: 2501202307310016
Дата опубликования: 31.07.2023
Страница №6 из 17:
Увеличить