Официальное опубликование правовых актов
ОФИЦИАЛЬНОЕ ОПУБЛИКОВАНИЕ
Приказ Инспекции по охране объектов культурного наследия Приморского края от 30.05.2022 № 200
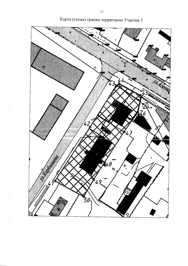
"Об утверждении границ территории объекта культурного наследия (памятника истории и культуры) народов Российской Федерации регионального значения "Ансамбль застройки Никольск–Уссурийской крепости. Жилые дома офицерского состава", конец XIX – начало XX вв., регистрационный номер 251721129800005, расположенного по адресу (местонахождение): Приморский край, г. Уссурийск, ул. Карбышева, дома: 10, 12, 14, 16, 18, 20, 22, 24, 26, 28, 30, 32, 34, 38, 40, ул. Афанасьева, дома: 31, 35, 39, 43, 51, 53, 55, 61, 65"
Номер опубликования: 2501202205310001
Дата опубликования: 31.05.2022
Страница №13 из 17:
Увеличить