Официальное опубликование правовых актов
ОФИЦИАЛЬНОЕ ОПУБЛИКОВАНИЕ
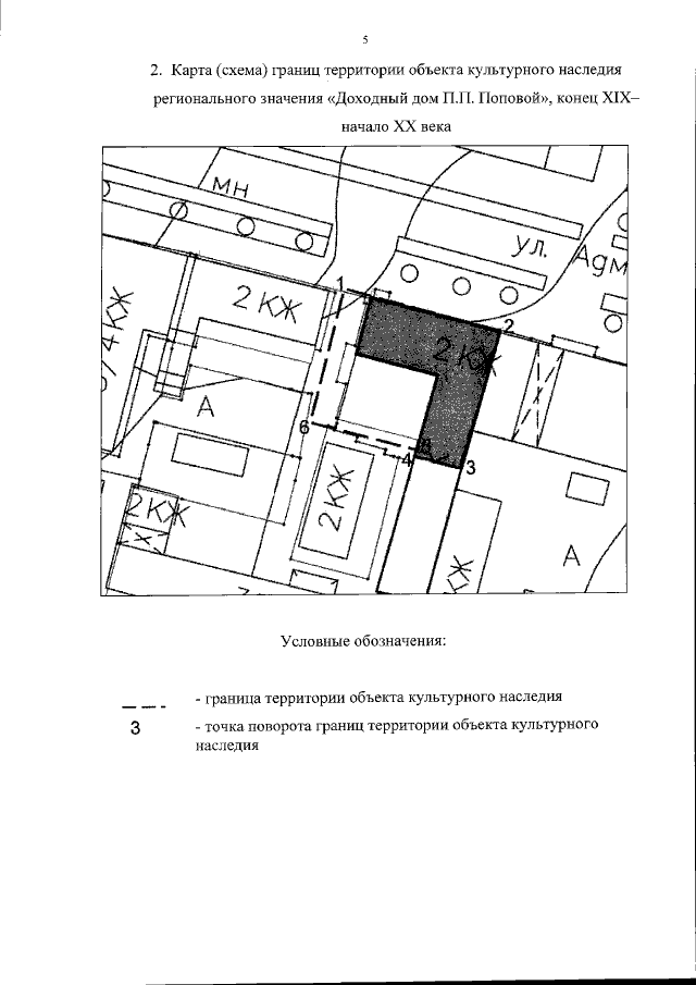
Приказ Инспекции по охране объектов культурного наследия Приморского края от 15.11.2021 № 942
"Об утверждении границ территории объекта культурного наследия (памятника истории и культуры) народов Российской Федерации регионального значения "Доходный дом П.П. Поповой", конец XIX–начало XX века, расположенного по адресу (местонахождение): Приморский край, г. Владивосток, ул. Адмирала Фокина, д. 4, строение 1, 2"
Номер опубликования: 2501202111170025
Дата опубликования: 17.11.2021
Страница №5 из 5:
Увеличить