Приказ Инспекции по охране объектов культурного наследия Приморского края от 21.10.2021 № 898
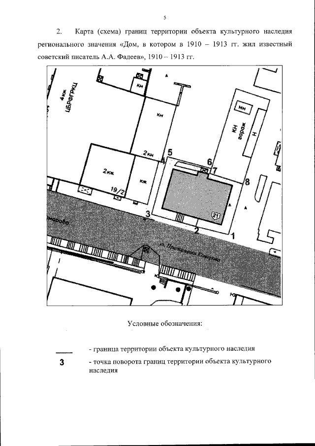
"Об утверждении границ территории объекта культурного наследия (памятника истории и культуры) народов Российской Федерации регионального значения "Дом, в котором в 1910 – 1913 гг. жил известный советский писатель А.А. Фадеев", 1910 – 1913 гг., расположенного по адресу (местонахождение): Приморский край, г. Владивосток, ул. Прапорщика Комарова, д. 21"
"Об утверждении границ территории объекта культурного наследия (памятника истории и культуры) народов Российской Федерации регионального значения "Дом, в котором в 1910 – 1913 гг. жил известный советский писатель А.А. Фадеев", 1910 – 1913 гг., расположенного по адресу (местонахождение): Приморский край, г. Владивосток, ул. Прапорщика Комарова, д. 21"
Номер опубликования: 2501202110250030
Дата опубликования:
25.10.2021
