Официальное опубликование правовых актов
ОФИЦИАЛЬНОЕ ОПУБЛИКОВАНИЕ
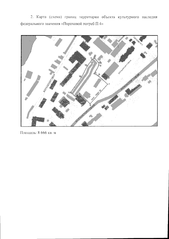
Приказ Инспекции по охране объектов культурного наследия Приморского края от 12.10.2021 № 881
"Об утверждении границ территории объекта культурного наследия федерального значения "Пороховой погреб П 4"
Номер опубликования: 2501202110140034
Дата опубликования: 14.10.2021
Страница №5 из 5:
Увеличить