Официальное опубликование правовых актов
ОФИЦИАЛЬНОЕ ОПУБЛИКОВАНИЕ
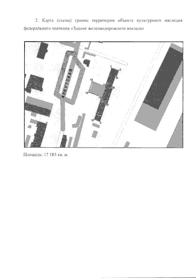
Приказ Инспекции по охране объектов культурного наследия Приморского края от 12.10.2021 № 872
"Об утверждении границ территории объекта культурного наследия федерального значения "Здание железнодорожного вокзала"
Номер опубликования: 2501202110140021
Дата опубликования: 14.10.2021
Страница №5 из 5:
Увеличить