Официальное опубликование правовых актов
ОФИЦИАЛЬНОЕ ОПУБЛИКОВАНИЕ
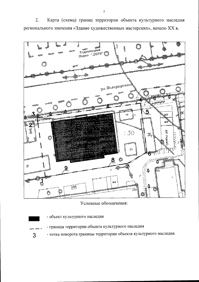
Приказ Инспекции по охране объектов культурного наследия Приморского края от 31.08.2021 № 439
"Об утверждении границ территории объекта культурного наследия (памятника истории и культуры) народов Российской Федерации регионального значения "Здание художественных мастерских", начало XX в., расположенного по адресу (местонахождение): Приморский край, г. Уссурийск, ул. Володарского, д. 40"
Номер опубликования: 2501202109030006
Дата опубликования: 03.09.2021
Страница №5 из 5:
Увеличить