Официальное опубликование правовых актов
ОФИЦИАЛЬНОЕ ОПУБЛИКОВАНИЕ
Приказ Инспекции по охране объектов культурного наследия Приморского края от 05.02.2021 № 48
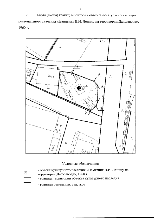
"Об утверждении границ территории объекта культурного наследия (памятника истории и культуры) народов Российской Федерации регионального значения "Памятник В.И. Ленину на территории Дальзавода", 1960 г., расположенного по адресу (местонахождение): Приморский край, г. Владивосток, ул. Дальзаводская, заводская площадь"
Номер опубликования: 2501202102090011
Дата опубликования: 09.02.2021
Страница №5 из 5:
Увеличить