Приказ Инспекции по охране объектов культурного наследия Приморского края от 25.11.2020 № 415
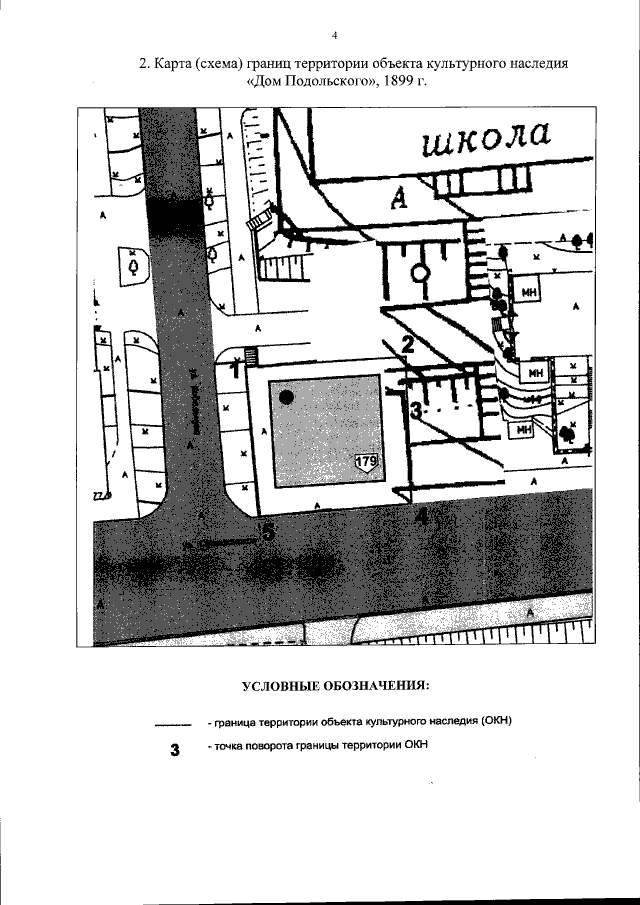
"Об утверждении границ территории объекта культурного наследия регионального значения "Дом Подольского", 1899 г., расположенного по адресу (местонахождение): Приморский край, г. Владивосток, ул. Светланская, д. 179"
"Об утверждении границ территории объекта культурного наследия регионального значения "Дом Подольского", 1899 г., расположенного по адресу (местонахождение): Приморский край, г. Владивосток, ул. Светланская, д. 179"
Номер опубликования: 2501202011300009
Дата опубликования:
30.11.2020
