Официальное опубликование правовых актов
ОФИЦИАЛЬНОЕ ОПУБЛИКОВАНИЕ
Приказ Инспекции по охране объектов культурного наследия Приморского края от 25.11.2020 № 412
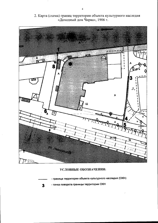
"Об утверждении границ территории объекта культурного наследия регионального значения "Доходный дом Чирва", 1906 г., расположенного по адресу (местонахождение): Приморский край, г. Владивосток, ул. Светланская, д. 114"
Номер опубликования: 2501202011300008
Дата опубликования: 30.11.2020
Страница №4 из 4:
Увеличить