Официальное опубликование правовых актов
ОФИЦИАЛЬНОЕ ОПУБЛИКОВАНИЕ
Приказ Инспекции по охране объектов культурного наследия Приморского края от 25.11.2020 № 411
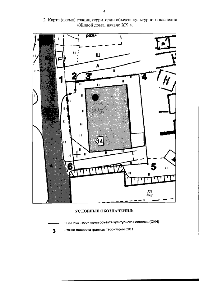
"Об утверждении границ территории объекта культурного наследия регионального значения "Жилой дом", начало XX в., расположенного по адресу (местонахождение): Приморский край, г. Владивосток, ул. Матросская 1-я, д. 14"
Номер опубликования: 2501202011300004
Дата опубликования: 30.11.2020
Страница №4 из 4:
Увеличить